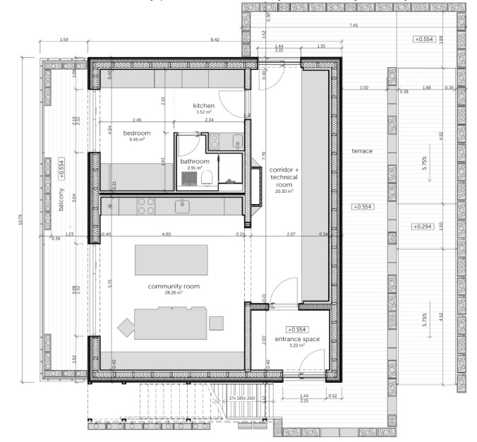
Půdorys soutěžního objektu (1.NP)

Pokračujte ve čtení níže ↓
Ceny bydlení ve městech rostou a studenti často zápasí s tím, kde by mohli bydlet. Studentský tým z ČVUT navrhl řešení a následně postavil jeho funkční ukázku. Ukázal tak, že i uprostřed města lze bydlet chytře, úsporně a moderně. Jejich dobré nápady zaujaly soutěžní porotu i veřejnost.
P.S. Chcete vědět, kde se dá na rozpočtu výstavby domu ušetřit a naopak kde má cenu neškudlit? Navštivte online stavební veletrh Veleton, který se uskuteční 19. ledna – 1. února 2026. Vstupenku lze stáhnout ZDARMA na tomto odkazu (počet vstupenek je limitován) . Těšit se můžete také na množství inspirace, živých přednášek, konzultací s odborníky i slevové vouchery.
Photocredit: Firstlife (se souhlasem)
číst více
