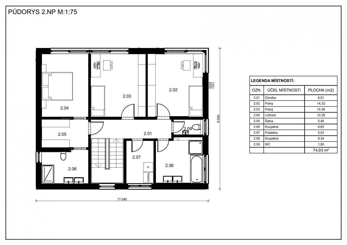
Půdorys 2. NP


Pokračujte ve čtení níže ↓
Manželé se dvěma dětmi se přestěhovali do nově postavené dřevostavby, kterou si sami navrhli. První týdny i měsíce byly krásné, ale s příchodem topné sezóny narazili manželé na problém. Když zatopili, trvalo zhruba jeden den, než se jim dům zcela vyhřál. Na skutečnou příčinu přišli až po nějakém čase, ale její odstranění si vyžádalo další investice. Majitelé se proto rozhodli varovat ostatní stavebníky, kteří by při plánování domu mohli postupovat stejně jako oni.
P.S. Zajímáte se o moderní způsoby vytápění a výrobu energie svépomocí? Navštivte online stavební veletrh Veleton, který se uskuteční 19. ledna – 1. února 2026. Vstupenku lze stáhnout ZDARMA na tomto odkazu (počet vstupenek je limitován) . Těšit se můžete na množství inspirace, živých přednášek, konzultací s odborníky i slevové vouchery.
Photocredit: Se souhlasem majitelů
číst více