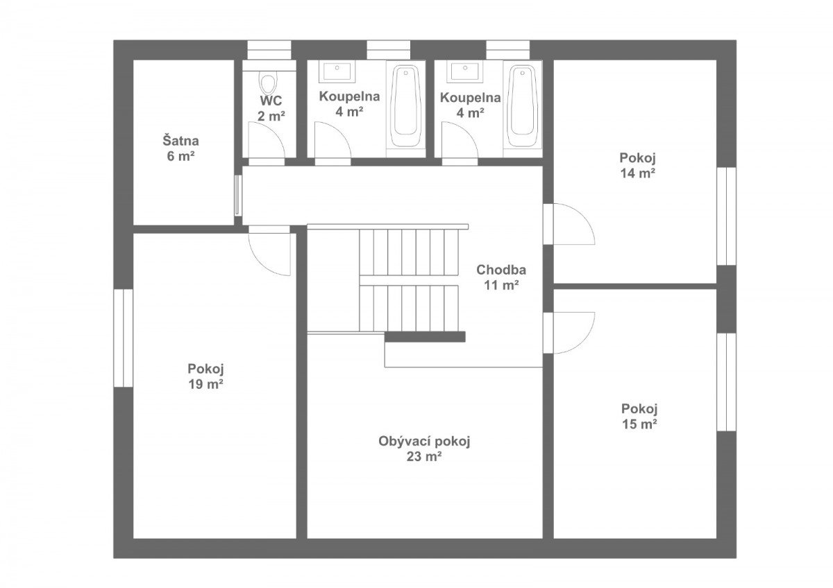
Půdorys 2.NP

Pokračujte ve čtení níže ↓
„Neumíme dělat kompromisy, když jde o kvalitu. Potřebujeme, aby se nám doma i venku líbilo a cítili jsme se dobře,“ vysvětlují majitelé. Na návrh jejich domu kladli poměrně velké požadavky a chtěli, aby byl výsledek perfektní. Nejen proto se rozhodli pro libereckou stavební firmu se zkušeným stavařem v čele, u které věděli, že dokáže vyřešit všechny náročné situace. Redakce Dřevostavitele je v novém domě navštívila a majitelé se rozhodli svou zkušenost zveřejnit.
P.S. Chcete vědět, kde se dá na rozpočtu výstavby domu ušetřit a naopak kde má cenu neškudlit? Navštivte online stavební veletrh Veleton, který se uskuteční 19. ledna – 1. února 2026. Vstupenku lze stáhnout ZDARMA na tomto odkazu (počet vstupenek je limitován) . Těšit se můžete na množství inspirace, živých přednášek, konzultací s odborníky i slevové vouchery.
Photocredit: Se souhlasem majitelů dřevostavby
číst více
