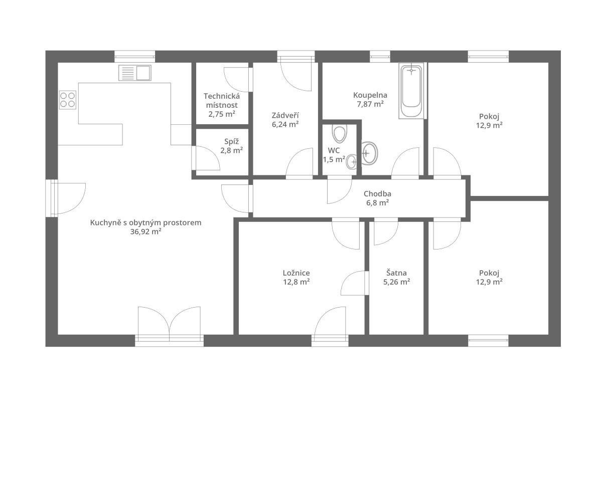
Majitelka: Dispozičně se nám zalíbil jeden typový dům, ale dělali jsme v něm nějaké úpravy (viz níže)

Pokračujte ve čtení níže ↓
Zvětšovali jsme okna a celý jsme ho zrcadlově převrátili kvůli světovým stranám (slunci). Jinak nám vyhovoval tak, jak byl.
P.S. Chcete vědět, kde se dá na rozpočtu výstavby domu ušetřit a naopak kde má cenu neškudlit? Navštivte online stavební veletrh Veleton, který se uskuteční 19. ledna – 1. února 2026. Vstupenku lze stáhnout ZDARMA na tomto odkazu (počet vstupenek je limitován) . Těšit se můžete také na množství inspirace, živých přednášek, konzultací s odborníky i slevové vouchery.
Photocredit: © Dřevostavitel.cz
číst více
