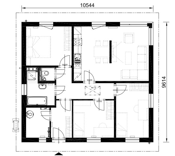
Původní typový projekt, který je na vysoké pozici v rámci veřejného hodnocení typových domů veřejností

Pokračujte ve čtení níže ↓
Mezi mnoha nabízenými katalogovými domy na našem trhu si mladí manželé vybrali právě ten, který je velice sympatický i spoustě dalším českým rodinám. Projekt dobře navrženého bungalovu si chtěli ale ještě více vylepšit k obrazu svému. Našli i pozemek, který by jim takové úpravy umožňoval. I když však splnili veškeré regulativy obce, museli se s těmito změnami nakonec rozloučit. Co se mladému páru přihodilo a jak nakonec stavba rodinného domu dopadla?
P.S. Chcete vědět, kde se dá na rozpočtu výstavby domu ušetřit a naopak kde má cenu neškudlit? Navštivte online stavební veletrh Veleton, který probíhá 19. ledna – 1. února 2026. Vstupenku lze stáhnout ZDARMA na tomto odkazu (počet vstupenek je limitován) . Těšit se můžete také na množství inspirace, živých přednášek, konzultací s odborníky i slevové vouchery.
číst více
