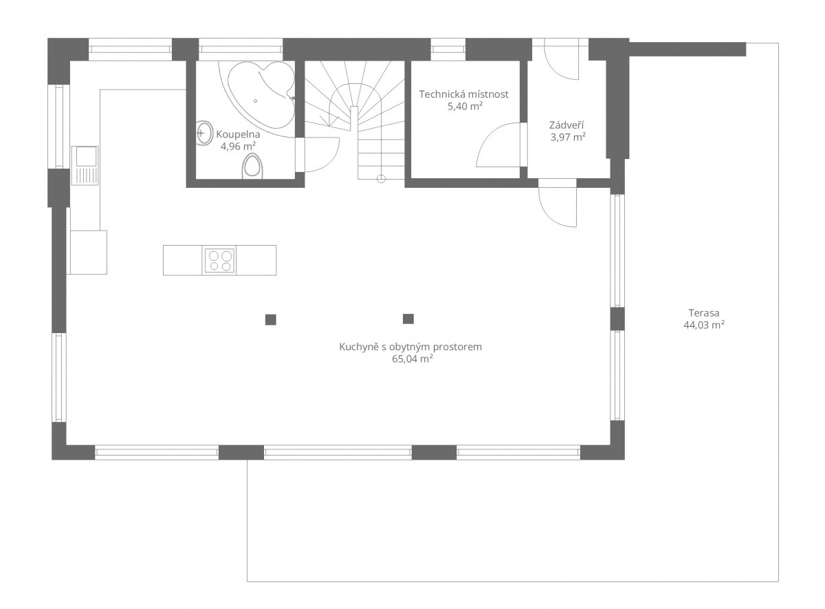
Zastavěná plocha rodinného domu činí 102,2 m2 (zde vidíte přízemí)

Pokračujte ve čtení níže ↓
Dům stojící v západních Čechách a orientovaný na sever by většina lidí považovala za nesmysl, a to především z hlediska pasivních solárních zisků. Majitelé Katka a Mike ale dokázali, že i bez tepelného čerpadla lze dosáhnout komfortního a úsporného vytápění. Topí na 24 °C a oceňují, že se dům rychle vyhřeje, dobře drží teplo a v létě zůstává příjemně chladný, a to i bez klimatizace.
P.S. Zajímáte se o moderní způsoby vytápění a výrobu energie svépomocí? Navštivte online stavební veletrh Veleton, který se uskuteční 19. ledna – 1. února 2026. Vstupenku lze stáhnout ZDARMA na tomto odkazu (počet vstupenek je limitován) . Těšit se můžete také na množství inspirace, živých přednášek, konzultací s odborníky i slevové vouchery.
Photocredit: © Dřevostavitel.cz
číst více
