Právě oddělení denní a noční zóny hodnotí majitelé jako jeden z největších přínosů

Pokračujte ve čtení níže ↓
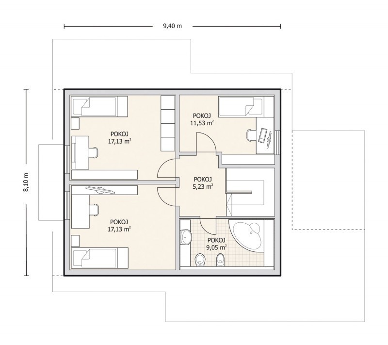
Rozumná pořizovací cena, velkorysá užitná plocha přes 150 metrů čtverečních a praktické řešení pro vícečlenné rodiny. Ačkoliv je to na první pohled zcela obyčejný patrový dům se sedlovou střechou, ve skutečnosti nabízí kombinaci parametrů, která v dnešní době nebývá samozřejmostí. Prohlédněte si fotografie, které poskytlo pět různých párů, které v oblíbeném domě bydlí několik let.
P.S. Řešíte stavbu domu, možnosti větrání a vytápění? Navštivte online stavební veletrh Veleton, který probíhá 11. – 19. dubna 2026. Vstupenku lze získat na tomto odkazu (počet vstupenek je limitován). Těšit se můžete také na množství inspirace, živých přednášek, konzultací s odborníky i slevové vouchery.
Photocredit: poskytnuto čtenářům Dřevostavitele
číst více
