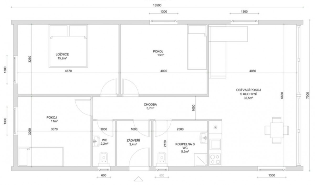
Češi si stále častěji pořizují cenově dostupné domy. Cena na klíč (94,5 m2) pro čtyřčlennou rodinu činí 3 172 000 Kč

Pokračujte ve čtení níže ↓
Moderní modulové dřevostavby dnes nabízejí plnohodnotné bydlení pro čtyřčlennou rodinu za cenu, která se ještě před několika lety zdála nereálná. Jeden z takových domů lze pořídit na klíč přibližně za 2,6 milionu korun a přitom nabídne tři ložnice, velký obytný prostor i energeticky úspornou konstrukci. Fotografie interiéru i exteriéru najdete v článku.
P.S. Řešíte stavbu domu, možnosti větrání a vytápění? Navštivte online stavební veletrh Veleton, který se uskuteční 17. – 31. ledna 2027. Vstupenku lze získat již nyní na tomto odkazu (počet vstupenek je limitován). Těšit se můžete také na množství inspirace, živých přednášek, konzultací s odborníky i slevové vouchery.
Photocredit: poskytnuto čtenářům Dřevostavitele
číst více
