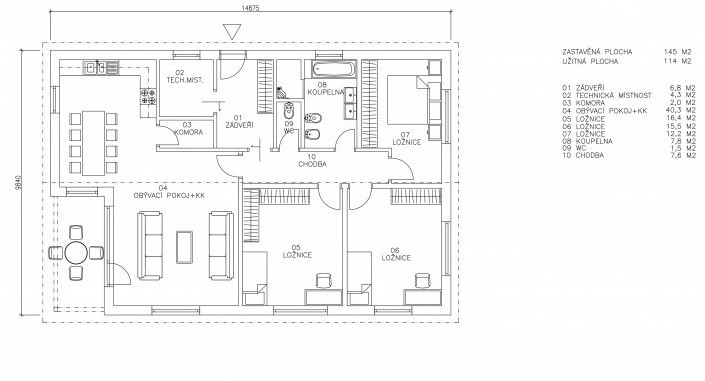
Na užitné ploše 114 metrů čtverečních se nachází deset místností (tři ložnice, obývací pokoj propojený s kuchyní, spíž, technickou místnost...)

Pokračujte ve čtení níže ↓
Novostavby rodinných domů v posledních letech výrazně zdražily, podobně jako stavební pozemky. Pro řadu rodin proto dává smysl hledat úspornější řešení a místo velkého pozemku zvolit menší parcelu, na které vznikne kompaktní rodinný dům. Mladé rodiny se při plánování vlastního bydlení často obávají, že menší dům nebude nabízet dostatek prostoru pro každodenní život. Musí to tak ale nutně být?
P.S. Řešíte stavbu domu, možnosti větrání a vytápění? Navštivte online stavební veletrh Veleton, který se uskuteční 17. – 31. ledna 2027. Vstupenku lze získat již nyní na tomto odkazu (počet vstupenek je limitován). Těšit se můžete také na množství inspirace, živých přednášek, konzultací s odborníky i slevové vouchery.
Photocredit: Tomáš Jordán
číst více
