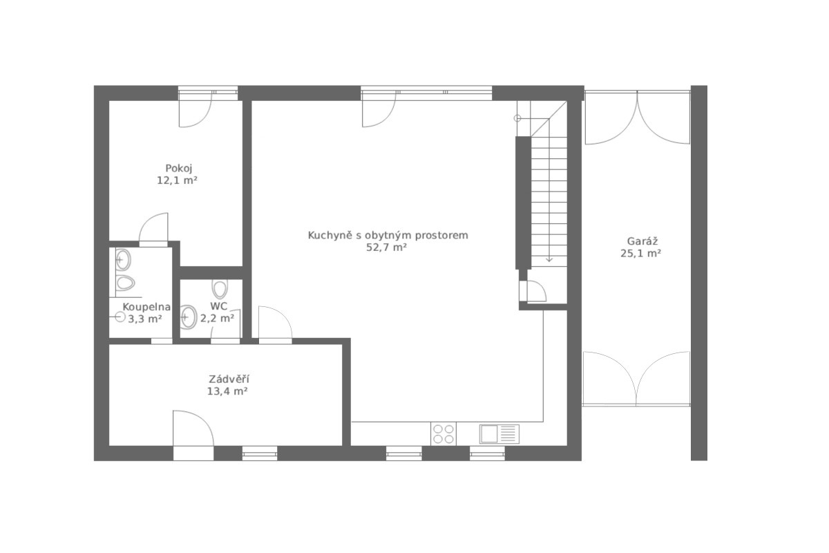
Na fotografii můžete vidět první nadzemní podlaží rodinného domu s celkovou dispozicí 6+kk

Pokračujte ve čtení níže ↓
Nový dům si původně plánovali až na důchod, nakonec se ale rozhodli přestěhovat z rušného Brna na klidnou vesnici dříve. Jiří s manželkou koupili pozemek se starými staveními, většinu z nich zbourali a odvezli stovky tun suti. Na jejich místě dnes stojí řadový dům, který rodina postavila zčásti svépomocí. Jak se jim v novém domě žije? Čím ho vytápí? A jak se jim podařilo postavit nemovitost i s omezeným rozpočtem? To vše a mnohem více nám prozradil majitel originální dřevostavby v našem rozhovoru.
P.S. Chcete vědět, kde se dá na rozpočtu výstavby domu ušetřit a naopak kde má cenu neškudlit? Navštivte online stavební veletrh Veleton, který se uskuteční 19. ledna – 1. února 2026. Vstupenku lze stáhnout ZDARMA na tomto odkazu (počet vstupenek je limitován) . Těšit se můžete na množství inspirace, živých přednášek, konzultací s odborníky i slevové vouchery.
Photocredit: © Dřevostavitel.cz
číst více
