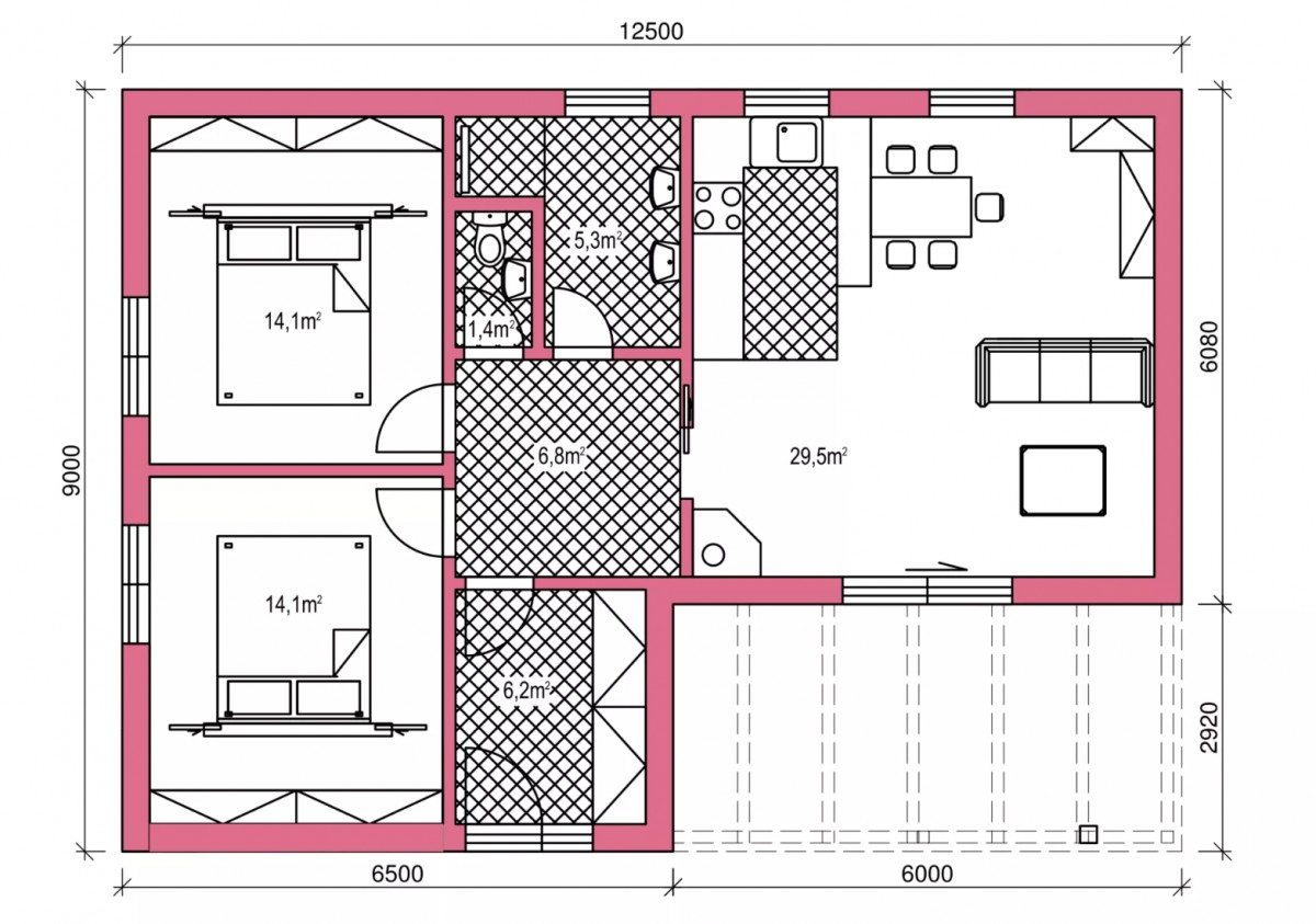
Dispozičně je dům řešen jako kompaktní celek, kde hlavní roli hraje otevřený obytný prostor. Ten spojuje kuchyň, jídelnu a obývací část do jedné místnosti

Pokračujte ve čtení níže ↓
Na první pohled nenápadný bungalov, který se vejde pod 4 miliony korun, začíná měnit způsob uvažování o vlastním bydlení. Zatímco nájmy dál rostou, splátka tohoto domu se drží překvapivě nízko. Právě proto si ho v poslední době všímají hlavně lidé kolem třicítky. Jenže čísla na papíře nejsou všechno.
P.S. Řešíte stavbu domu, možnosti větrání a vytápění? Navštivte online stavební veletrh Veleton, který se uskuteční 17. – 31. ledna 2027. Vstupenku lze získat již nyní na tomto odkazu (počet vstupenek je limitován). Těšit se můžete také na množství inspirace, živých přednášek, konzultací s odborníky i slevové vouchery.
Photocredit: poskytnuto čtenářem Dřevostavitele
číst více
