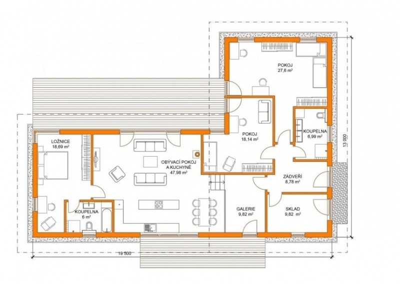
Zastavěná plocha rodinného bungalovu činí 186 m2, přičemž užitná plocha domu zaujímá 154 m2

Pokračujte ve čtení níže ↓
Majitelé rodinného domu si už při návrhu uvědomovali, že z finančního hlediska nehraje důležitou roli jen cena domu, tedy pořizovací náklady, ale také náklady provozní. Svůj dům si proto navrhli tak, aby byly provozní náklady co nejnižší a nemuseli se obávat vysokých záloh ani nedoplatků. Výsledek? Po několika letech života v dřevostavbě jsou maximálně spokojení a cestu, kterou si zvolili, doporučují i svému okolí.
P.S. Řešíte stavbu domu, možnosti větrání a vytápění? Navštivte online stavební veletrh Veleton, který probíhá 11. – 19. dubna 2026. Vstupenku lze stáhnout ZDARMA na tomto odkazu (počet vstupenek je limitován) . Těšit se můžete také na množství inspirace, živých přednášek, konzultací s odborníky i slevové vouchery.
Photocredit: Se souhlasem majitelů
číst více
