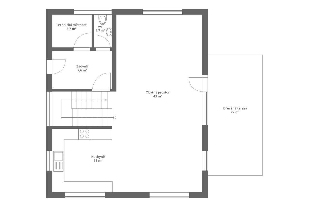
Dnes je s volbou vytápěcích systémů velmi spokojený, neboť náklady na vytápění domu (135 m2) nejsou příliš vysoké

Pokračujte ve čtení níže ↓
V době, kdy většina novostaveb spoléhá na technické vychytávky a sofistikované systémy, stojí na Moravě krásná roubenka, která jde zcela opačným směrem. Její majitel se rozhodl pro jednoduchost, a to nejen při volbě vytápěcích systémů. Navštívili jsme jeho moderní dům a během rozhovoru nám mimo jiné popsal i náklady na vytápění.
P.S. Zajímáte se o moderní způsoby vytápění a výrobu energie svépomocí? Navštivte online stavební veletrh Veleton, který se uskuteční 19. ledna – 1. února 2026. Vstupenku lze stáhnout ZDARMA na tomto odkazu (počet vstupenek je limitován) . Těšit se můžete také na množství inspirace, živých přednášek, konzultací s odborníky i slevové vouchery.
Photocredit: © Dřevostavitel.cz
číst více
