Rodinný dům R 187
následující » « předchozí
693. místo

| Stavitel domu: | OK PYRUS |
| Konstrukční systém: | Roubenka |
| Provedení: | Patrový dům |
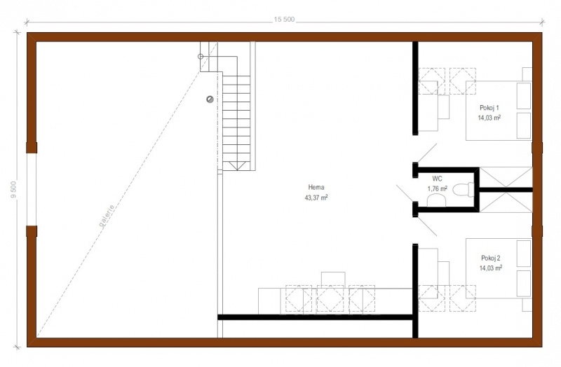
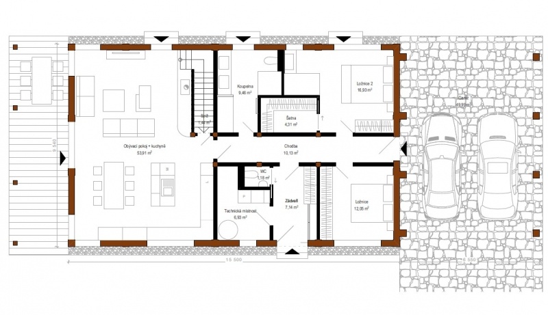
| Dispozice: | 5+kk |
| Energetický std.: | Nízkoenergetický |
| ↓ zobrazit více | |
| Zastavěná plocha: | 148 m2 |
| Užitná plocha: | 187 m2 |
| Cena vč. zákl. desky: | NE |
Co píší o tomto domě?

Do obýváku si sehnali obrovský krb, který vytopí celý dům. Vnitřek moderní roubenky nenachází konkurenci
Už při vstupu do interiéru je jasné, že největší chloubou domu je velkorysý krb, který se stal srdcem celé dřevostavby.
Podívejte se na zkušenosti s firmou OK PYRUS, s.r.o. z pohledu jejích zákazníků.
Podělte se s námi o Váš názor:
Hodnocení: 5 z 5
