Bezúdržbový dům, který vydrží všechny rozmary počasí

Pokračujte ve čtení níže ↓
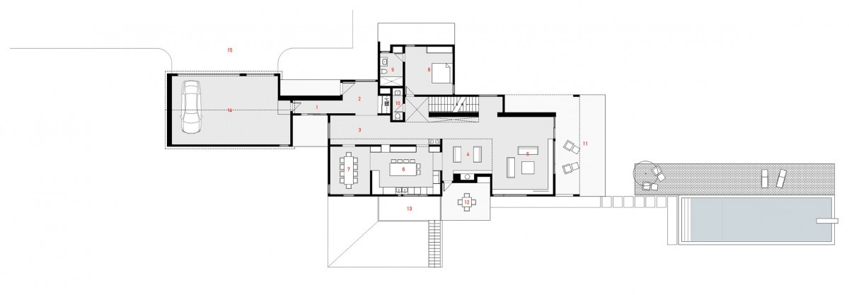
Budoucí majitelé domu v Amagansettu, malém městečku ve Spojených státech, dali newyorským architektům Maziaru Behroozovi a Bruci Engelovi z MB Architecture opravdu těžký úkol. Požadovali po nich navrhnout dům, který by byl v podstatě bezúdržbový a zároveň měl opravdu dlouhou životnost. A to jak zevnitř, tak zvenku. Pojďte se s námi nyní podívat, jestli si architekti dokázali s touto výzvou poradit.
P.S. Chcete vědět, kde se dá na rozpočtu výstavby domu ušetřit a naopak kde má cenu neškudlit? Navštivte online stavební veletrh Veleton, který se uskuteční 19. ledna – 1. února 2026. Vstupenku lze stáhnout ZDARMA na tomto odkazu (počet vstupenek je limitován) . Těšit se můžete také na množství inspirace, živých přednášek, konzultací s odborníky i slevové vouchery.
Photocredit: Matthew Carbone
číst více
