Vybrali si typový projekt z katalogu a provedli v něm několik individuálních úprav (viz níže)

Pokračujte ve čtení níže ↓
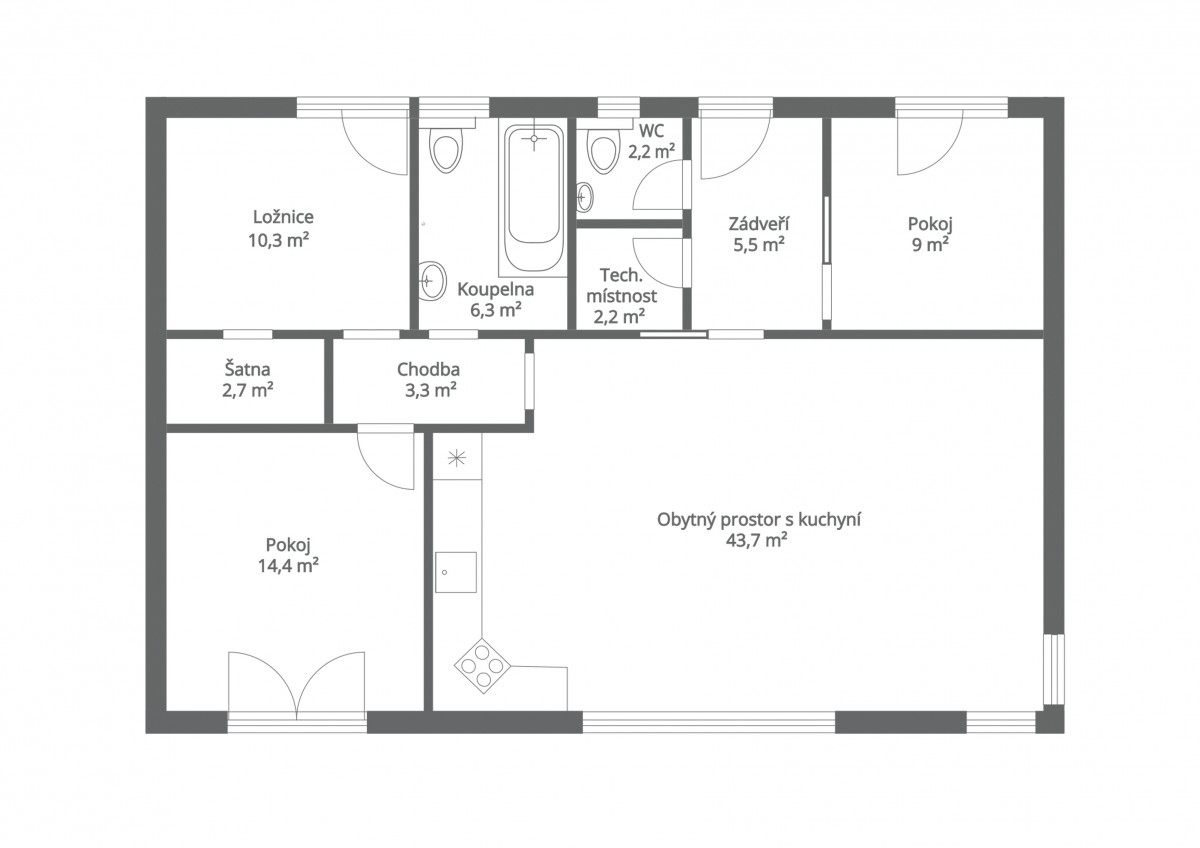
Oproti typovému domu jsme nechtěli přesah střechy a dům jsme prodloužili o půl metru. Interiér jsme podle situace ladili prostřednictvím příček.
P.S. Chcete vědět, kde se dá na rozpočtu výstavby domu ušetřit a naopak kde má cenu neškudlit? Navštivte online stavební veletrh Veleton, který se uskuteční 19. ledna – 1. února 2026. Vstupenku lze stáhnout ZDARMA na tomto odkazu (počet vstupenek je limitován) . Těšit se můžete na množství inspirace, živých přednášek, konzultací s odborníky i slevové vouchery.
Photocredit: © Dřevostavitel.cz
číst více
