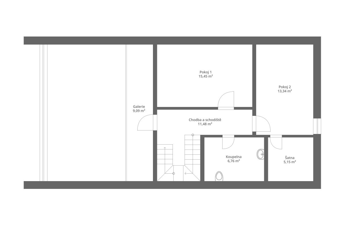
Ukázka půdorysu typového projektu s drobnými úpravami (2. NP)

Pokračujte ve čtení níže ↓
Mladá dvojice v sobě už nechtěla potlačovat touhu po větším klidu a vlastním domě, a tak se pustila do hledání parcely. Věděli, že na samotný dům budou mít velké požadavky, a proto hledali stavaře a stavební firmu, která by dokázala uspokojit i ty nejnáročnější nároky. A našli. Moderní dům s proskleným štítem vyrostl do roka a majitelé si nemohou spolupráci se stavařem z Prahy vynachválit.
P.S. Chcete vědět, kde se dá na rozpočtu výstavby domu ušetřit a naopak kde má cenu neškudlit? Navštivte online stavební veletrh Veleton, který se uskuteční 19. ledna – 1. února 2026. Vstupenku lze stáhnout ZDARMA na tomto odkazu (počet vstupenek je limitován) . Těšit se můžete na množství inspirace, živých přednášek, konzultací s odborníky i slevové vouchery.
Photocredit: © Dřevostavitel.cz
číst více
