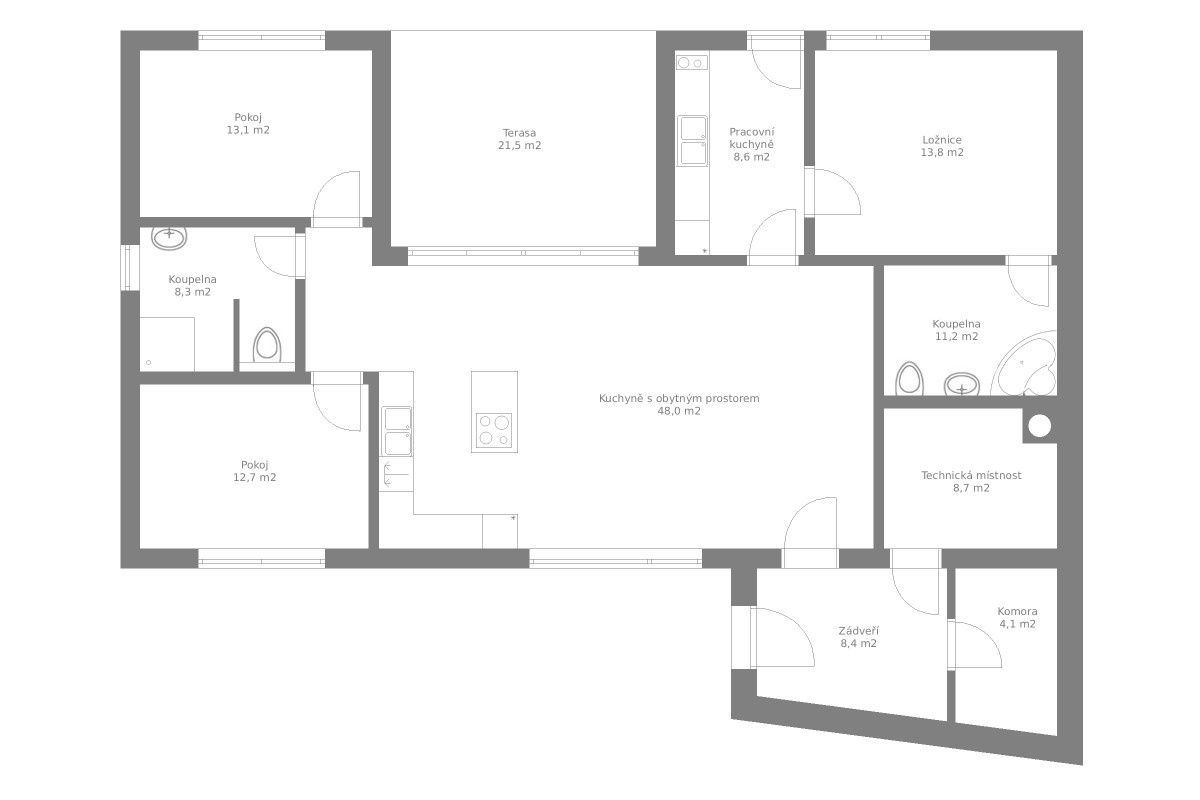
Půdorys moderního bungalovu se samostatnou kuchyňkou, ložnicí a koupelnou. Ty slouží jako vejminek pro maminku

Když jejich pět dětí postupně vyletělo z hnízda, zůstali v obrovském domě sami. Velké pokoje, rozlehlá zahrada i náročná údržba byly najednou pro dva zbytečně velké sousto. Začali proto přemýšlet o menším a praktičtějším bydlení bez schodů, které jim bude dobře sloužit i v dalších letech. Řešení nakonec našli na pozemku se starým kamenným domkem po mamince. Ten zbourali a na jeho místě postavili dřevostavbu, kde mohou být mamince nablízku a ona má přitom svůj klid a soukromí.
Photocredit: Josef Vyškovský
číst více
