Maminčin kamenný domek zbourali a na jeho místě postavili dřevostavbu. Mamince v ní zařídili útulný vejminek
Když jejich pět dětí postupně vyletělo z hnízda, zůstali v obrovském domě sami. Velké pokoje, rozlehlá zahrada i náročná údržba byly najednou pro dva zbytečně velké sousto. Začali proto přemýšlet o menším a praktičtějším bydlení bez schodů, které jim bude dobře sloužit i v dalších letech. Řešení nakonec našli na pozemku se starým kamenným domkem po mamince. Ten zbourali a na jeho místě postavili dřevostavbu, kde mohou být mamince nablízku a ona má přitom svůj klid a soukromí.

Kde jste bydleli předtím, než jste se rozhodli postavit si nový dům?
Milan: Sedm let jsme bydleli na Vinohradech a předtím ještě na dalších devíti místech. Tohle je naše desáté a možná už konečné bydliště a zároveň náš druhý dům.
Jaký dům jste měli předtím?
Milan: Máme pět dětí, takže jsme na velkém pozemku postavili prostorný dům. Nakonec jsme tam ale zůstali sami, protože všechny děti postupně odešly. Dům měl dispozici 8+2, 49 oken, čtyři koupelny, bazén a obrovskou zahradu, takže pro dva byl zbytečně velký. Rozhodli jsme se ho prodat a postavit si nový tady, ve středních Čechách.
Proč právě tady?
Milan: Moje maminka tady měla malý starý kamenný domek, který byl v dezolátním stavu. Propadala se podlaha, zatékalo střechou a dům byl vlhký. Hrozilo, že jí na hlavu něco spadne. Původní dům jsme zbourali a na téměř stejném půdorysu postavili nový.
Jaroslava: Hlavní důvod byl ten, že už tady nemohla být sama. Teď přes rok bydlí v bytě v Praze a v létě je s námi tady, v dřevostavbě. Má v domě vlastní ložnici, kuchyňku a koupelnu, takže takový vejminek.
„Museli jsme dům zvednout o 42 centimetrů a upravit projekt. Stavba se kvůli tomu na dva měsíce zastavila.“
Zůstala ze starého domu základová deska, nebo jste museli udělat novou?
Milan: Původně jsem si myslel, že něco zůstane, ale když se dům otevřel, zjistili jsme, že všechno musí pryč. Bylo to v tak špatném stavu, že se to samo sypalo, takže se musela dělat i nová základová deska. Problém je, že je tady všude skála. Kvůli ní jsme museli dům postavit trochu výše.
Jaroslava: Chtěli jsme mít dům úplně bezbariérový, bez jakýchkoliv schodů, ale kvůli skále to nešlo.
Milan: I vedlejší dům, ke kterému jsme přilepení, stojí na skále. Museli jsme tedy dům zvednout o 42 cm a upravit projekt. Stavba se kvůli tomu na dva měsíce zastavila. Do země jsme předem neviděli, takže jsme to zjistili až při kopání. Stálo nás to nervy i čas, ale nakonec to dobře dopadlo.
Jaroslava: Kvůli změně projektu jsme navíc museli znovu obejít sousedy, ale všichni nakonec souhlasili. Naštěstí jsme měnili jen výšku, vše ostatní zůstalo stejné.
Proč jste se rozhodli postavit dřevostavbu, a ne zděný dům?
Jaroslava: Na možnost dřevostavby jsme narazili na internetu. Začali jsme se o to zajímat a hledat si k tomu nejrůznější informace. Přesvědčila nás především rychlost výstavby. Začali jsme hledat firmy, které dřevostavby staví.
Podle čeho jste vybírali stavební firmu?
Jaroslava: Hledali jsme firmu, jejíž domy by nás zaujaly. Nejvíce se nám zalíbily baráčky od firmy WOLF Haus.
Jak jste vybírali konkrétní dům a jeho dispozici?
Jaroslava: Původně jsme chtěli atriový dům, dokola uzavřený, se zahrádkou uprostřed. Jenže ten by se sem nevešel, protože jsme museli dodržet původní rozměry domu. Tento dům jsme si vybrali proto, že má hodně francouzských oken a je dost prosvětlený.
Milan: Hlavně jsme chtěli přízemní bungalov, protože jsme nechtěli chodit do schodů. Podkroví sice máme, ale není obytné, používáme ho jen na ukládání věcí. Bungalov je praktický především z hlediska údržby. Poučili jsme se z minulého domu, opustily mě takové ty velkopanské choutky, které jsem tam občas měl, dělal jsem si tam například vodopády a podobně (smích).
Takže váš dům vychází z typové varianty?
Jaroslava: Ano, jen jsme si uvnitř trochu upravili dispozici. V základní verzi nebyla předsíň a člověk by vstupoval rovnou do obýváku. Kuchyně měla být na místě koupelny, my jsme tyto místnosti prohodili.
Za jak dlouho jste měli vyřízené stavební povolení?
Jaroslava: Trvalo to dlouho, čekali jsme na něj zhruba rok a poté se to ještě pozastavilo na dva měsíce.
„Měli to hotové snad za jeden den a druhý den přivezli střechu. Skládali to jako puzzle.“
To je poměrně dlouhá doba, v čem byl problém?
Jaroslava: Na úřadě byla jedna paní a lidí, kteří vyřizovali povolení, bylo hodně. Když jsem jí volala, řekla mi, že je tam sama a nezajímalo ji, že lhůta ke schválení už uplynula.
Měli jste stavební dozor?
Milan: Stavební dozor byl ze strany firmy, měli vlastního stavbyvedoucího. Další dozor jsme neměli. Já jsem tu byl každý den a stavbu jsem si tak hlídal sám.
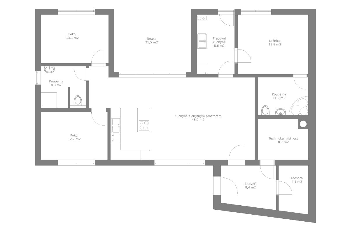
Popis dispozice domu
Po vstupu do domu se ocitáme v prostorném zádveří, ze kterého vejdeme do hlavní části domu tvořené kuchyní, jídelnou a obytným prostorem. Z této místnosti se dostaneme nejen do koupelny a dvou pokojů, ale je zde také vstup na prosklenou terasu. Součástí dispozice je také menší bytová jednotka, která nabízí vlastní kuchyň, ložnici a koupelnu. Tento prostor majitelé využívají jako vejminek pro maminku a pro ubytování návštěv.
Stavěli jste dům na klíč, nebo na dokončení?
Jaroslava: Dům byl na klíč, předali nám ho kompletně hotový. Byly hotové podlahy, dveře i koupelny. Chtěli jsme mít všechno od jedné firmy.
Milan: Je lepší nadávat na jednu firmu, než aby se dvě vymlouvaly jedna na druhou (smích). Ale to naštěstí nebyl náš případ, byli jsme se stavební firmou spokojení.
Byli jste se podívat na stavbu hrubé stavby?
Jaroslava: Ano, bylo to zajímavé a krásné. Měli to hotové snad za jeden den a druhý den přivezli střechu. Skládali to jako puzzle.
Jak dlouho trvala samotná stavba, od stavby základové desky po stěhování?
Milan: Celý proces trval asi rok a půl.
Jaroslava: Loni jsme v domě prožili čtvrté Vánoce.
Dělali jste si na domě nebo kolem něj něco svépomocí?
Milan: Ano, hlavně věci kolem domu. Zahradu, ploty, přístřešek na auto, okapové chodníčky, napojení okapů do retenční nádrže, dlažbu i terasu jsme si dělali sami. Nic zásadního na samotném domě jsme ale svépomocí nedělali.
Čím dřevostavbu vytápíte?
Milan: Ve všech místnostech kromě špajzu a technické místnosti máme podlahové vytápění napojené na tepelné čerpadlo vzduch-voda.
Jak vám vycházejí zálohy za energie?
Milan: Na začátku jsme neměli sazbu pro tepelné čerpadlo, takže to byla anabáze. Trvalo delší dobu, než jsme přešli na nejlevnější tarif. Nejdřív jsme platili vysoké zálohy, asi 5 500 Kč měsíčně. Po roce nám je snížili na 4 900 Kč. Na elektřinu máme v domě všechno a s tepelným čerpadlem jsme spokojení. Každý rok před zimou uděláme servis a funguje bez problémů.
„Prosklená terasa má přes dvacet metrů čtverečních. Je to skoro jako další místnost a díky zasklení se ohřeje i o sedm stupňů.“
Není tepelné čerpadlo hlučné?
Jaroslava: Jednotku mám pod ložnicí, a i když mám otevřené okno, hluk nevnímám. Sousedka ale říká, že ho občas slyší.
Neuvažovali jste nad jiným typem vytápění?
Jaroslava: Plyn tady není, takže to jsme měli vyřešené.
Milan: A krb jsme zamítli. V předchozím domě jsme ho měli, ale používali jsme ho převážně kvůli atmosféře. Takže nám zbývalo tepelné čerpadlo.
Máte v domě bojler?
Milan: Máme 80litrový akumulační bojler napojený na tepelné čerpadlo. Bohatě nám to stačí, i když máme návštěvu.
Jak máte vyřešenou vodu?
Jaroslava: Je tady místní vodovod. Už byl napojený i na starý dům, takže přípojky jsme nemuseli řešit.
Milan: Kdysi jsem měl stavební firmu, která dělala vodovody a kanalizace, takže v této ulici jsem vodovod stavěl přímo já. Máme i retenční nádrž, která má objem pět kubíků. Problémová byla opět ta skála. Jámu pro nádrž jsme museli skoro čtrnáct dní vysekávat v žule pomocí kladiva IPH. Trvalo to dlouho a bylo to finančně náročnější.
Jak řešíte chlazení v létě?
Jaroslava: Předokenní žaluzie i klimatizaci máme ve všech pokojích. Kromě toho jsme si pořídili roletky. Když je slunce nízko a svítí nám přímo do očí, stáhneme je.
Milan: Já klimatizaci používám prakticky celé léto. Manželka moc ne, protože je teplomilná a vadí jí, když na ni fouká.
Můžete porovnat komfort v dřevostavbě a ve zděném domě?
Jaroslava: Tepelně i izolačně je to v dřevostavbě skvělé. V zimě je teplo, i když netopíme, a v létě je tu naopak příjemně.
Milan: Náš předchozí zděný dům byl hlavně moc velký. Měli jsme tam pokoje o velikosti 64 m2, což bylo na vytápění hrozné. Tady přijdeme domů a je rychle teplo.
„Ale samozřejmě já jsem ta hlava a manželka ten krk, který tou hlavou hýbe. Uznal jsem, že má s prohozením místností ve vejminku pravdu.“
Co se vám po čase bydlení nejvíce líbí na dispozici domu?
Jaroslava: Nám se líbí celé řešení. Pořád si říkáme, že jsme to vymysleli dobře a že nám to vyhovuje. Maminka už hůř chodí, takže je fajn, že nemusí překonávat žádné schody ani překážky, když jde ven.
Milan: Skvělá je i prosklená terasa, která má přes 20 m2. Je to skoro jako další místnost, člověk má pocit, že je přímo v zeleni. Díky zasklení se navíc prostor ohřeje i o sedm stupňů, i když se netopí.
Jaroslava: Pochvalujeme si i vejminek. Když přijede návštěva, má tam vše, co potřebuje. Nikdo nemusí čekat na koupelnu, je to perfektní.
Ohledně interiéru, shodli jste se na všem?
Jaroslava: Na většině jsme se shodli, ale byly i výjimky. Například dveře, to bylo na rozvod (smích). Dále jsme měli každý jinou představu o dispozici vejminku.
Milan: Ale samozřejmě já jsem ta hlava a manželka ten krk, který tou hlavou hýbe. Uznal jsem, že má s prohozením místností ve vejminku pravdu.
U dřevostaveb se lidé často bojí hlučnosti, že bude všechno slyšet. Jaká je vaše zkušenost?
Milan: Nevím, jestli je to samotnou dřevostavbou, nebo dobře udělanými dveřmi a jejich těsněním, ale neslyšíme tady vůbec nic.
Zahradu jste si navrhovali sami?
Jaroslava: Měli jsme zahradníka. Základní představu jsme si navrhli sami, řekli jsme, co tam chceme a jak by to mělo vypadat. Zahradník pak věděl, které rostliny potřebují stín a které slunce, a podle toho to zrealizoval. Něco málo jsme si dosadili ještě sami.
Milan: Na zahradě je mírný svah, ten vznikl nejen kvůli skále, ale i proto, že dole u plotu je kanalizační jímka a vodovodní šachta. Kdyby měl být terén v rovině s trávníkem, muselo by to být zhruba o dva metry výš. Proto jsme to vyřešili takto.
Jaké tady máte sousedské vztahy?
Milan: Některé sousedy jsme znali, protože jsme sem léta jezdili za maminkou. Vztahy jsou zde převážně dobré. Jen jsou tady lidé někdy opatrnější vůči „naplaveninám“. Když jsme začali stavět, někoho to rušilo. Člověk má tendenci zapomenout, že kdysi také stavěl.
Co bylo během stavby domu nejvíce stresující?
Jaroslava: Pro mě bylo nejhorší objednávání nábytku. Některé věci měly dodací lhůtu. Stavba se ale zpozdila, podlahy měly být hotové v určitém termínu, ale nestihlo se to, a mezitím nám volali z obchodů, že si máme nábytek vyzvednout. Neměli jsme ho kam dát. Například u kuchyně jsme museli zaplatit ještě dva měsíce skladování, protože jsme ji neměli kam uskladnit.
Milan: Za mě byla největší komplikací ta skála. Kdykoli se muselo kopat do země, byl problém.
Je něco, co byste dnes udělali jinak?
Milan: Myslím, že ne. Kdybychom měli jinou lokalitu, líbil by se nám ten původně plánovaný atriový dům. Ale tady jsme ušetřili asi pět milionů za pozemek, takže toho nelitujeme.
Doporučili byste dřevostavbu svým známým?
Jaroslava: Ano, už jsme ji doporučili. A ti známí už plánují také stavět, dokonce se stejnou firmou jako my. Byli jsme s ní velmi spokojeni, nic pro ně nebyl problém. Co jsme si vymysleli, to vyřešili.
Děkuji za rozhovor, ať se vám hezky bydlí.
Děkujeme.
P.S. Chcete vědět, kde se dá na rozpočtu výstavby domu ušetřit a naopak kde má cenu neškudlit? Navštivte online stavební veletrh Veleton, který se uskuteční 17. – 31. ledna 2027. Vstupenku lze získat již nyní na tomto odkazu (počet vstupenek je limitován). Těšit se můžete také na množství inspirace, živých přednášek, konzultací s odborníky i slevové vouchery.
SDÍLET ČLÁNEKInformace o stavbě:
Dispozice: dům 3kk, vejminek 1+1
Užitná plocha: 147 m2
Zastavěná plocha: 174 m2
Typ konstrukce: rámová sendvičová konstrukce
Realizační firma: WOLF HAUS
Plánujete stavbu rodinného domu? Navštivte ONLINE KURZ, kde se naučíte, jak správně postupovat i na co si dát pozor. více informací »
Autor:
Mgr. Tereza Šťastná
Redaktorka Dřevostavitele
Vydáno dne:
16.04.2026
Photocredit: Josef Vyškovský

Dům ve vintage stylu si postavili ve VIP zóně. Jednoduchou úpravou dispozice ušetřili půl milionu
Lenka s Robertem věděli, že chtějí vychovávat děti v rodinném domě. Cesta za novým bydlením sice nebyla vždy snadná, nakonec se však manželům podařilo stylovou dřevostavbu postavit.

Celý život všem říká, ať si postaví dřevostavbu. Sama teď jednu vlastní a otevřeně říká, co ji překvapilo
Odbornice, která dřevostavby roky studovala, si před rokem jednu postavil a dnes otevřeně říká, co ji po roce bydlení překvapilo. Kolik to stojí, kde se nejvíc chybuje a s jakými narážkami se musela na počátku výstavby potýkat?

Sucho ničí sousedům zahrady, říká. Tu svou zalévají z retenční nádrže
Zatímco řada domácností aktuálně řeší rostoucí cenu vody a obavy ze sucha, její rodina z Moravy má opačnou zkušenost. „Dokonce nám přišel přeplatek za vodu ve výši necelých 5 tisíc korun za rok, což nás mile překvapilo,“ říká majitelka novostavby v průběhu rozhovoru.
NEJHLEDANĚJŠÍ DOMY
- Bungalovy do L
- Bungalovy inspirace
- Bungalovy na klíč
- Dřevostavby bungalovy
- Dřevostavby do 1,5mil
- Dřevostavby na klíč
- Moderní domy
- Modulové domy
- Montované domy na klíč
- Projekty bungalovů
- Rodinné domy na klíč
- Roubenky na klíč
- Sruby na klíč
- Tiny house
UŽITEČNÉ
NOVINKY E-MAILEM ZDARMA
Přihlaste se k odběru a dostávejte nejžhavější novinky:
