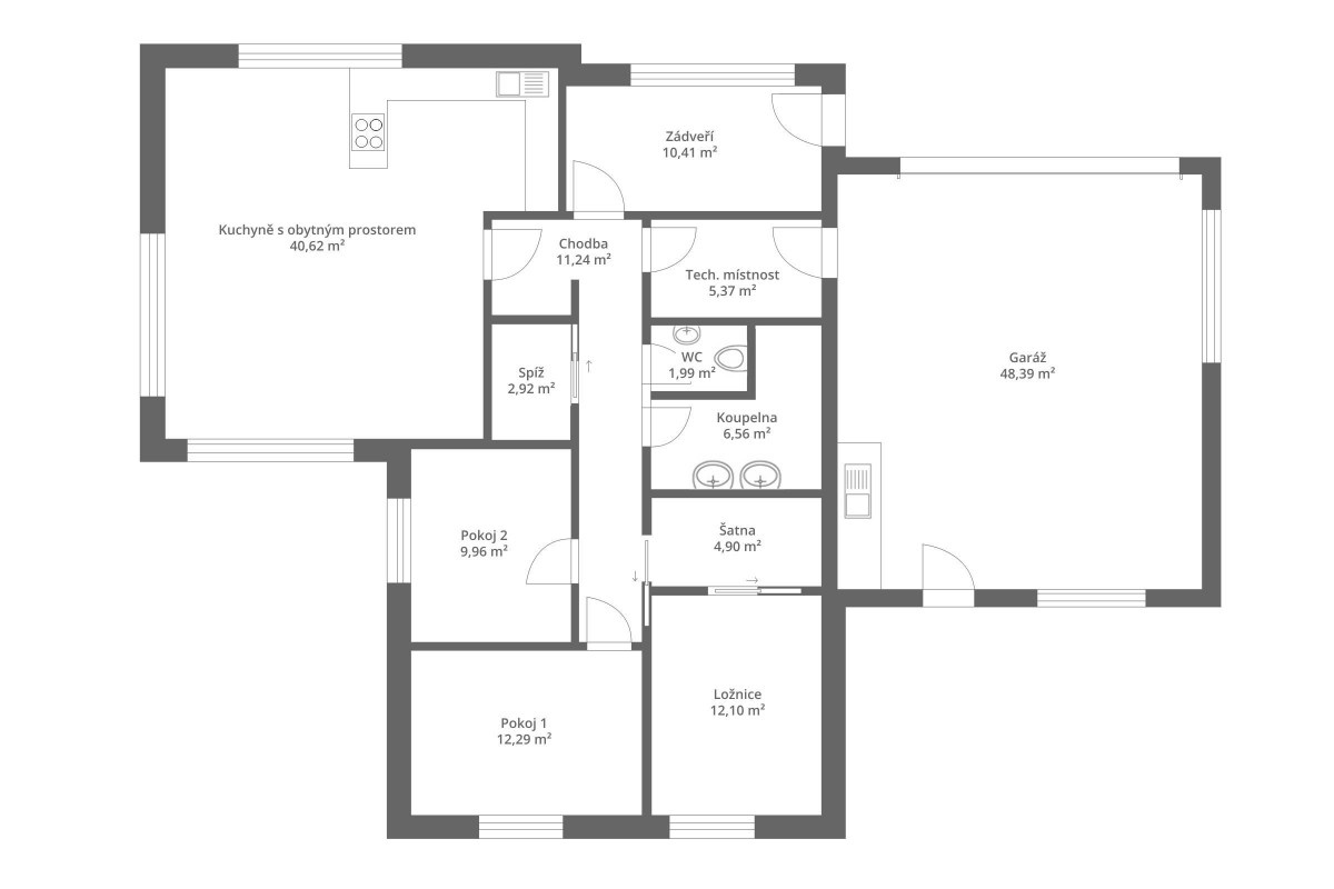
Půdorys bungalovu s dispozicí 4+kk

Pokračujte ve čtení níže ↓
Na důchod plánovali, že se odstěhují na svou chalupu, kterou si kdysi pořídili jako klidné útočiště mimo město. Jenže okolnosti se rázem změnily. Obě jejich děti zůstaly žít ve městě a spolu s nimi i vnoučata, která pro manžele vždy byla jednou z hlavních priorit. Padlo tedy rozhodnutí, které by mnoho lidí v jejich věku považovalo za příliš riskantní.
P.S. Chcete vědět, kde se dá na rozpočtu výstavby domu ušetřit a naopak kde má cenu neškudlit? Navštivte online stavební veletrh Veleton, který probíhá 11. – 19. dubna 2026. Vstupenku lze získat na tomto odkazu (počet vstupenek je limitován) . Těšit se můžete také na množství inspirace, živých přednášek, konzultací s odborníky i slevové vouchery.
Photocredit: © Dřevostavitel.cz
číst více
