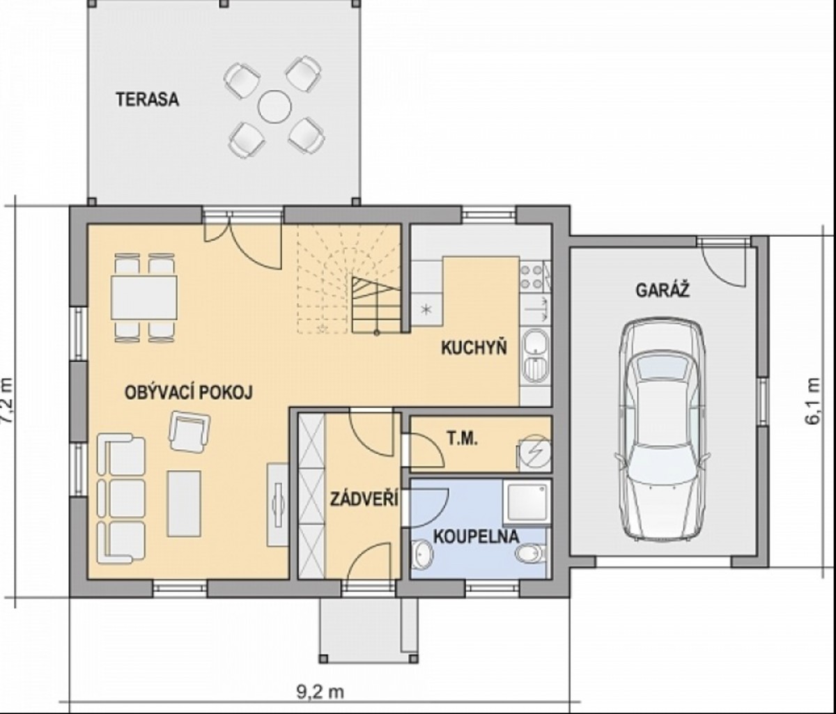
Dominantou přízemí se pak stává velký obývací pokoj s jídelnou. Ten tvoří přirozené centrum rodinného života a zároveň nabízí přímý kontakt se zahradou

Pokračujte ve čtení níže ↓
Parcely o velikosti přes 1 000 m2, na které se bez problémů vešel rozlehlý bungalov i velká zahrada, si dnes může dovolit jen málokdo. Mnohem častěji se prodávají pozemky kolem 500 m2, a lidé proto začínají přemýšlet jinak. Pokud chtějí získat dostatek obytného prostoru, nezbývá než stavět do výšky. Patrové domy s podkrovím tak zažívají návrat a na menších parcelách dávají mnohem větší smysl než rozložitý přízemní dům.
P.S. Řešíte stavbu domu, možnosti větrání a vytápění? Navštivte online stavební veletrh Veleton, který se uskuteční 17. – 31. ledna 2027. Vstupenku lze získat již nyní na tomto odkazu (počet vstupenek je limitován). Těšit se můžete také na množství inspirace, živých přednášek, konzultací s odborníky i slevové vouchery.
Photocredit: Petr Marhan
číst více
