Půdorys nového domu si spousta třicátníků pochvaluje pro jeho otevřený obytný prostor

Pokračujte ve čtení níže ↓
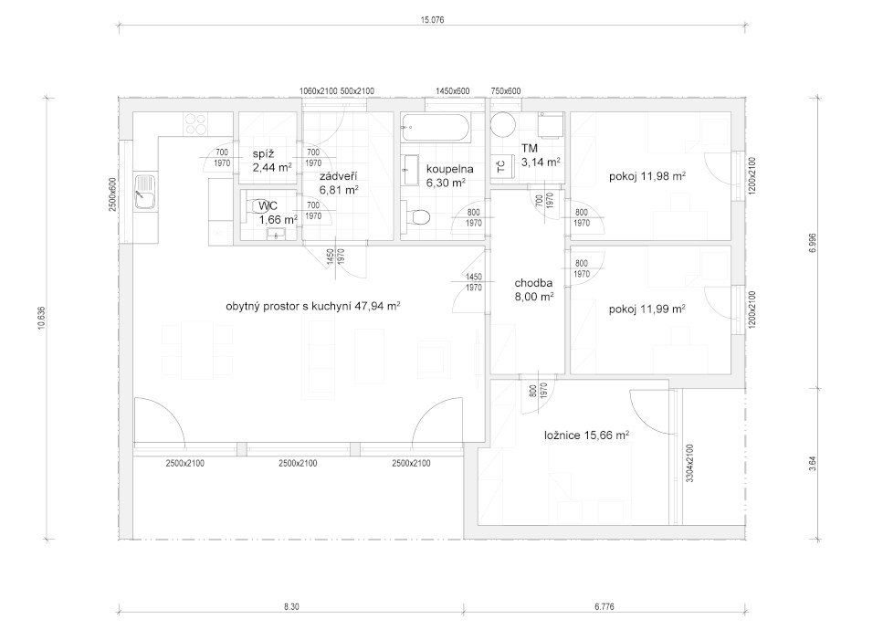
Stavba rodinného domu je jednou z největších investic v životě. Málokdo si ale uvědomuje, že statisíce může ušetřit ještě před prvním výkopem. Stačí se podívat na půdorys a upravit několik dispozičních detailů, které nemají zásadní vliv na komfort bydlení, ale výrazně ovlivní konečnou cenu. Ukázku dobře navrženého půdorysu najdete v naší fotogalerii.
P.S. Řešíte stavbu domu, možnosti větrání a vytápění? Navštivte online stavební veletrh Veleton, který se uskuteční 17. – 31. ledna 2027. Vstupenku lze získat již nyní na tomto odkazu (počet vstupenek je limitován). Těšit se můžete také na množství inspirace, živých přednášek, konzultací s odborníky i slevové vouchery.
Photocredit: Katalog projektů Dřevostavitele
číst více
