Průkaz energetické náročnosti budovy – přehled plnění závazných požadavků vyhlášky

Pokračujte ve čtení níže ↓
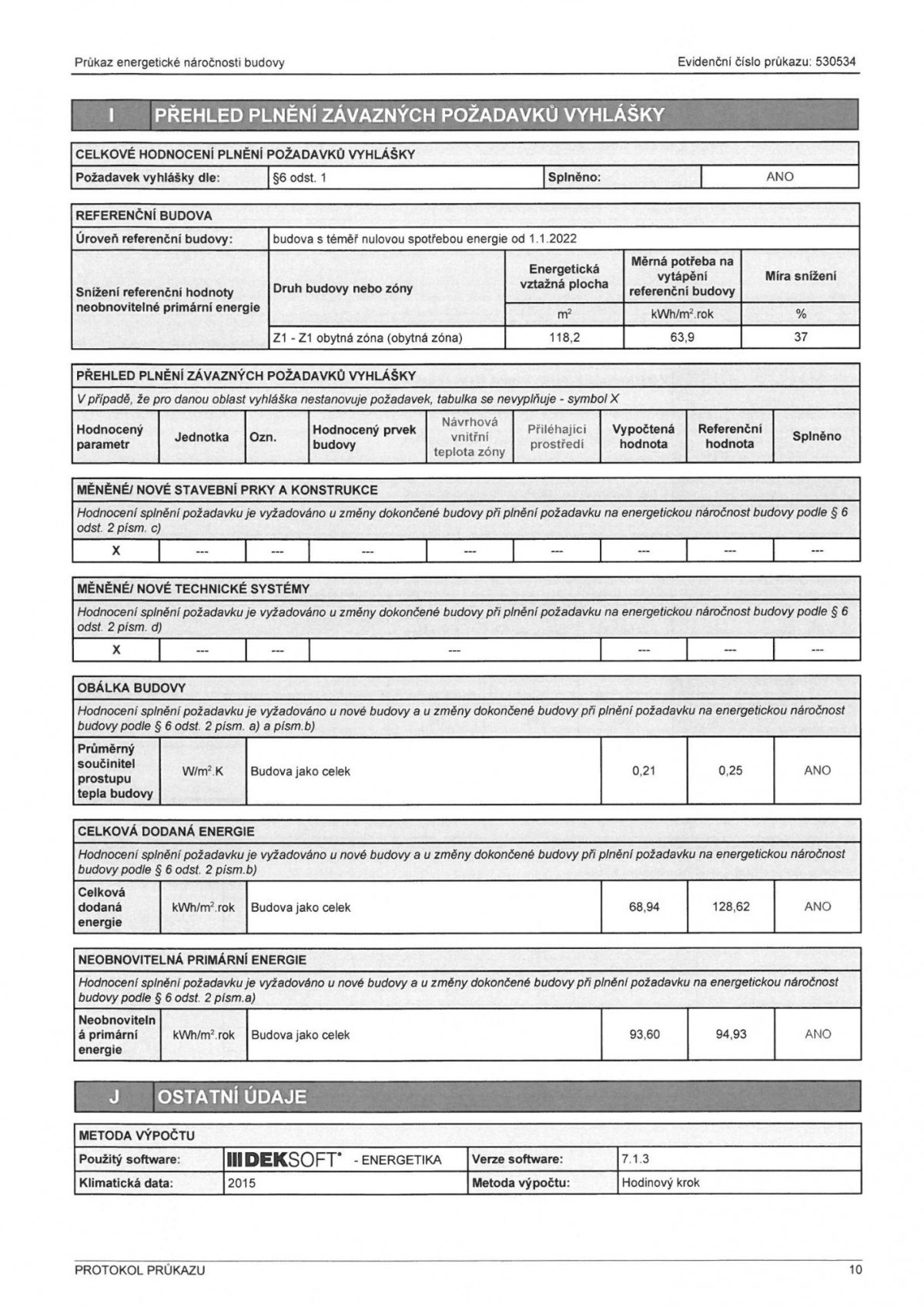
Koupit si vysněný dům nebo byt bez ověření, kolik bude stát jeho provoz, je v Česku až překvapivě běžnou záležitostí. Polovina zájemců o koupi totiž podle odborníků vůbec neřeší průkaz energetické náročnosti budovy (PENB). Jedná se o dokument, který jasně ukazuje, jak úsporná či naopak energeticky náročná daná nemovitost je. Lidé tak často až po nastěhování zjistí, proč byl jejich nový domov mezi těmi levnějšími.
P.S. Zajímáte se o moderní způsoby vytápění a výrobu energie svépomocí? Navštivte online stavební veletrh Veleton, který se uskuteční 19. ledna – 1. února 2026. Vstupenku lze stáhnout ZDARMA na tomto odkazu (počet vstupenek je limitován) . Těšit se můžete na množství inspirace, živých přednášek, konzultací s odborníky i slevové vouchery.
Photocredit: Pavel Ř. (se souhlasem)
číst více
