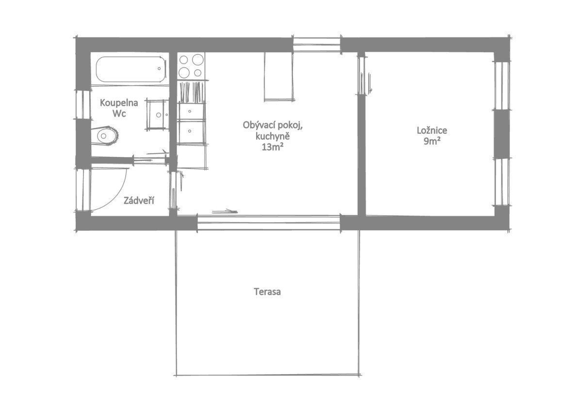
Půdorys modulového domku, který byl postaven na zahradě u rodinného domu pro maminku, aby nebydlela sama

Pokračujte ve čtení níže ↓
Málokdo najde v Česku stavební pozemek pod 2 miliony s ideálními podmínkami pro stavbu domu. Kromě cen za parcely rostou i ceny rodinných domů a málokdo tak má šanci pustit se do zhmotnění snu o vlastním bydlení. Někteří se pustí do stavby domu svépomocí, aby ušetřili, ale nespočítají si, kolik mezitím zaplatí pronajímateli bytu. Dnes je proto důležité uvažovat o bydlení co nejúsporněji a hledat alternativní řešení. A jedno z nich si Češi už osvojili. Zájem o celoroční minidomky roste.
P.S. Hledáte inspiraci pro Vaše bydlení? Navštivte online stavební veletrh Veleton, který se uskuteční 19. ledna – 1. února 2026. Vstupenku lze stáhnout ZDARMA na tomto odkazu (počet vstupenek je limitován) . Těšit se můžete také na množství inspirace, živých přednášek, konzultací s odborníky i slevové vouchery.
Photocredit: Se souhlasem majitelů dřevostavby
číst více

