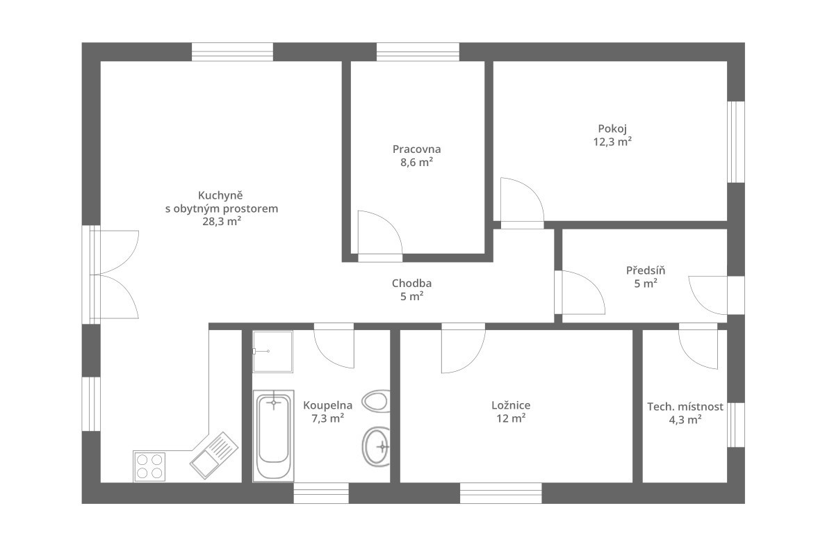
Půdorys bungalovu 4+kk na stáří

Pokračujte ve čtení níže ↓
„Buď to do padesátky stihnu, nebo se na to vykašlu,“ říká s úsměvem majitel domu, který se s manželkou rozhodl vyměnit pronajatý byt za menší, úsporný a bezúdržbový dům na Moravě. Nechtěli další roky svého života strávit v nájmu, ale ve vlastním domě se zahradou. Zvolili dřevostavbu, jejíž hrubá stavba byla hotová během čtyř dnů a do nového domu se stěhovali za půl roku. Pozvali nás na návštěvu a popsali, jak se jim v domě žije po sedmi letech. Co by dnes udělali jinak?
P.S. Chcete vědět, kde se dá na rozpočtu výstavby domu ušetřit a naopak kde má cenu neškudlit? Navštivte online stavební veletrh Veleton, který se uskuteční 19. ledna – 1. února 2026. Vstupenku lze stáhnout ZDARMA na tomto odkazu (počet vstupenek je limitován) . Těšit se můžete také na množství inspirace, živých přednášek, konzultací s odborníky i slevové vouchery.
Photocredit: Se souhlasem majitelů dřevostavby
číst více
