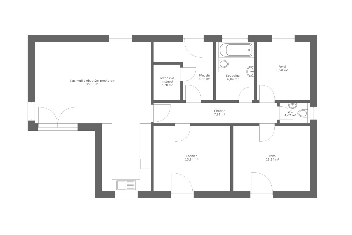
Půdorys rodinného domu na Královéhradecku

Pokračujte ve čtení níže ↓
Zatímco hledali větší byt pro svou rodinu, nečekaně je zlákala možnost postavit si dům za městem. Manželé našli klidnou parcelu s dobrou dostupností a velkou zahradou. Spočítali si, že investice do vlastního domu by byla velmi podobná investici do bytu, a tak neváhali. Brzy však zjistili, že realita spojená s koupí pozemku a stavbou v nové zástavbě přináší řadu nečekaných událostí. Šárka a Tomáš se rozhodli o nich veřejně promluvit.
P.S. Chcete vědět, kde se dá na rozpočtu výstavby domu ušetřit a naopak kde má cenu neškudlit? Navštivte online stavební veletrh Veleton, který se uskuteční 19. ledna – 1. února 2026. Vstupenku lze stáhnout ZDARMA na tomto odkazu (počet vstupenek je limitován) . Těšit se můžete také na množství inspirace, živých přednášek, konzultací s odborníky i slevové vouchery.
Photocredit: © Dřevostavitel.cz
číst více
