Manželé si nechali postavit dům od zkušené dvojice stavařů z Pardubicka. Po čtyřech letech bydlení jsme nahlédli dovnitř
Zatímco hledali větší byt pro svou rodinu, nečekaně je zlákala možnost postavit si dům za městem. Manželé našli klidnou parcelu s dobrou dostupností a velkou zahradou. Spočítali si, že investice do vlastního domu by byla velmi podobná investici do bytu, a tak neváhali. Brzy však zjistili, že realita spojená s koupí pozemku a stavbou v nové zástavbě přináší řadu nečekaných událostí. Šárka a Tomáš se rozhodli o nich veřejně promluvit.

Šárko, Tomáši, kde jste bydleli předtím a co bylo impulzem ke stavbě nového domu?
Šárka: Bydleli jsme v Hradci Králové v bytě 2+kk, dcera v té době byla ve školce. S manželem jsme si ale říkali, že až půjde do první třídy, bylo by dobré, aby měla svůj pokojíček. Začali jsme se tedy poohlížet po větších bytech. Nicméně velmi brzy jsme zjistili, že za cenu bytu můžeme mít za Hradcem, kam jezdí i MHD, rodinný dům. Původně jsme do domu nechtěli, ale kvůli dceři jsme nad tím začali uvažovat.
Jak se pohybovaly ceny bytů v Hradci?
Tomáš: Před těmi čtyřmi lety stál byt s terasou okolo 5,5 milionů korun, řadový dům pak přibližně 7 milionů Kč.
Jak jste narazili na tuto novou zástavbu se stavebními pozemky?
Tomáš: V létě na nás vyskočila reklama a my se sem jeli podívat.
Šárka: Bylo tady jen pole a nic víc. Pozemky se tady začaly prodávat všechny najednou.
Tomáš: Po oslovení makléře jsme dostali geometrický plán i se zakreslenými parcelami. Nevěděli jsme, který pozemek by se nám líbil, takže jsme se dívali na všechny a makléř nám průběžně říkal, zda je volný, nebo už zabraný.
A proč padla volba právě na tento pozemek?
Tomáš: Chtěli jsme menší parcelu, protože jsme věděli, že nám to bude stačit. V tom roce 2019 byla cena 3 100 Kč/m2. Pamatuju si, že nám to přišlo dost drahé. Každý se chytal za hlavu, když jsme jim řekli, že kupujeme pozemek za 2,6 milionu Kč. Dnes se tady prodávají pozemky za 7 500 Kč/m2.
Řešili jste v rámci koupě pozemku něco nestandardního, na co by si lidé měli dávat pozor?
Tomáš: Věděli jsme, že tu předtím stála cihelna, takže jsme si jen nebyli jistí, co je v půdě. Sice tady byly prováděné sondy a jejich podrobný popis a zpracování na fotkách vypadalo dobře, ale byla tam zmínka o složitosti podloží.
Šárka: Psali tam, že pozemky mohou mít různá podloží. Takže jsme počítali s tím, že až začneme stavět, může nastat nějaký problém. My máme například pod základy rodinného domu základy jiné stavby, nejspíš sušičky cihel.
Tomáš: Všechno jsme se dozvídali postupně. Pozemek byl zvenku krásný, rovina, žádný výškový rozdíl, vše bez problémů. Jakmile se bagr se lžící dostal asi do 20 cm, začalo to skřípat a všechny základy jsme prořezávali do nějakých cihlových zdí. Pak jsme se od starousedlíků dozvěděli, jak to tady dřív vypadalo, kde stála jaká budova a podobně. Samozřejmě někteří lidé, kteří tady nyní bydlí a jsou původem odsud, věděli, jak to tu dříve vypadalo, a vybírali si pozemky tam, kde nic nestálo.
Neupozornili vás na to při ukázce pozemků?
Tomáš: Ve smlouvě o pozemcích byla zmínka, že se tady mohou místy objevovat zbytky spodních staveb. To, že je tady zbouraná továrna, jejíž zbytky jsou 20 cm pod zemí, tam úplně zmíněno nebylo.
Co vás vedlo k tomu postavit si tady právě dřevostavbu?
Šárka: Líbila se nám ta rychlost. Chtěli jsme, aby si dcera ještě stihla užít zahradu, dokud je malá. Nakonec se ale výstavba stejně trochu protáhla v důsledku pandemie.
Tomáš: Z hlediska časové osy to vychází tak, že jsme pozemek začali hledat v červnu roku 2019 a na podzim už jsme uzavřeli smlouvu se stavební firmou. Pak se čekalo na zasíťování pozemků a zrealizování chodníků a komunikací. Výstavba domu začala v březnu roku 2021 a v prosinci téhož roku jsme se už stěhovali.
Věděli jste, do čeho jdete, co se týče dřevostavby? Zjišťovali jste si nějaké informace o konstrukčním systému?
Tomáš: Trochu jsme si informace zjišťovali. Rodiče manželky mají dřevostavbu, respektive klasický okál, takže jsme menší zkušenost měli. Pak jsme jen vybírali firmu, která pro nás bude technologicky přijatelná. Nechtěli jsme dřevostavbu, která se staví přímo na staveništi, a nechtěli jsme, aby se stavělo ze zdravotně závadných materiálů, to znamená žádné OSB desky, lepidla a tak dále.
Byli jste se podívat i ve výrobní hale?
Tomáš: Ve výrobní hale jsme nebyli, ale ve stavební firmě nám ukázali řezy sendvičovou konstrukcí. U firmy DD Haus nás oslovila jejich nabídka standardů z hlediska ceny. V rámci vysokého standardu měli v ceně i tepelné čerpadlo a podlahové topení a tak dále.
Byl to důvod, proč jste si vybrali právě tuto firmu?
Šárka: Ano, hlavně kvůli standardům. A taky se nám líbilo, že firmu vlastní dva mladí, energičtí kluci, kteří už mají za sebou nějakou historii, byť ne příliš dlouhou.
Tomáš: Líbilo se nám i jejich jednání ohledně domu, vůči našim požadavkům a podobně. Roli hrálo i to, že je to místní firma a oni jsou rodáci z vedlejší vesnice, nemuseli jsme nikam daleko dojíždět.
Jak probíhala realizace základové desky na problematickém podloží?
Tomáš: Základy máme jednou tak hluboké, než měly být. Tím, jak se vybírala stavební suť ze země, základ se rozšiřoval, tak stavbaři museli jít hlouběji, protože se pořád objevovaly další zbytky materiálu. Trochu jsme tím byli zaskočeni, ale když jsme později viděli, jak se staví základy sousedních domů, které byly vykopány například pět metrů do země, a stavěli dům na pilotách, byli jsme rádi, jak to nakonec dopadlo u nás.
Takže jste si nechali postavit dům na klíč včetně základové desky?
Tomáš: Ano, na klíč, základová deska byla v ceně domu. Chtěli jsme základovou desku a dům od jedné firmy. Dům na klíč jsme chtěli hlavně proto, že pracuji na směny, nemám pevnou pracovní dobu a nedokázali jsme si představit, že bychom si dům stavěli sami a že by se stavělo roky, jak to u některých staveb je.
🔴 Nejvíc lidí právě čte:
„Spolehlivý ultralehký stan dnes pořídíte za zlomek ceny,“ radí zkušený cestovatel
Dům máte katalogový? Prováděli jste nějaké individuální úpravy?
Tomáš: Ano, máme katalogový dům, ale celou vnitřní dispozici, okna, dveře a místnosti jsme předělávali hlavně podle situování zahrady a pohybu slunce. Chtěli jsme specifické místnosti, jako je chodba, koupelna s WC a technická místnost orientovat k silnici, aby nás to nerušilo, a obývací pokoj, ložnici a dětský pokoj jsme chtěli situovat směrem do zahrady, což vlastně rozhodlo o změně.
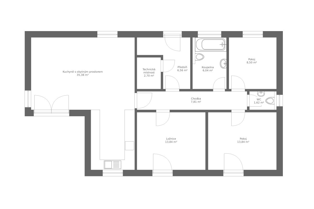
Popis rodinného domu
Projdete-li hlavními dveřmi domu, ocitnete se v moderní, netradičně řešené předsíni. Ve výklenku po pravé straně je menší botník s prostorem na sezení a větší zrcadlo. Naopak na levé straně jsou chytře navržené skříně pro odkládání kabátů a bund. Odtud vedou dveře do technické místnosti a do chodby, ze které se následně dostanete do všech ostatních pokojů. Pokud byste se vydali doleva, dostanete se do koupelny, dětského pokoje, pokoje pro hosty a na samostatné WC. Naopak naproti vám bude ložnice a po vaší pravé straně hlavní obytná místnost s kuchyní a jídelnou. Pokud byste si chtěli prohlédnout celý půdorys, klikněte zde.
Stavební povolení jste si vyřizovali sami?
Šárka: Ne, všechno zařídil dodavatel stavby. Z toho jsme byli nejvíce nadšeni, že jsme se nemuseli o nic starat. Vyřízené to bylo v řádu tří až čtyř měsíců.
Energetický štítek jste řešili ještě v době, kdy nebyla zpřísněná pravidla na energetickou náročnost domu, je to tak? Jak vytápíte váš dům?
Tomáš: Máme tepelné čerpadlo vzduch-vzduch a podlahové vytápění pomocí elektrických topných kabelů. Tuto kombinaci nám doporučili ve stavební firmě, bylo to tak navržené ve standardu. Dodatečně jsme dodělávali i krbovou vložku. Ve standardu nebylo tepelné čerpadlo se třemi jednotkami, nýbrž s jednou, my jsme si zbylé dvě dopláceli.
Poznámka redakce: O nákladech za vytápění se majitelé rodinného domu více rozpovídali v souvisejícím článku, který najdete zde.
Máte v domě i klimatizaci?
Šárka: Máme, ale téměř ji nepoužíváme. I když máme orientovaný dům na jih a jsou velká horka, nepotřebujeme dům vůbec chladit. Z toho jsem hodně nadšená.
Tomáš: Občas jsem klimatizaci ze zvědavosti v létě zapnul, i kvůli tomu, aby bylo čerpadlo v provozu, ale jinak jsme ji nepoužívali.
A venkovní žaluzie využíváte víc na stínění nebo kvůli soukromí?
Šárka: Hlavně kvůli zatemnění. Předtím jsme bydleli ve městě, kde nám do bytu svítily pouliční lampy a nebylo to úplně komfortní, především kvůli spánku. Když žaluzie zatáhneme, je tady absolutní tma a spí se úplně skvěle. Dále jsme si říkali, že nám budou pomáhat regulovat i teplotu v domě, ale není to potřeba.
Vraťme se zpět k domu jako takovému. Jak proběhla kolaudace?
Tomáš: Kolaudace u nás probíhala na dálku, z úřadu nikdo nepřijel. Majitelé domů podepisují dokumenty o tom, že se během výstavby dodržela všechna stanoviska a regulativy obce, čímž se zavazují, že dodrží to, co se má dodržet.
A jak probíhá kolaudace na dálku?
Tomáš: Podali jsme prohlášení o dokončení stavby a museli jsme dům i vyfotit. Na stavební odbor to posléze podala firma a nám už pak přišlo jen číslo popisné.
Dokážete si vybavit, co pro vás bylo nejvíce stresující na celém procesu výstavby?
Tomáš: Bylo to stresující od začátku do konce, protože se to stavělo během pandemie, kdy byly všechny provozovny zavřené.
Šárka: Do žádného obchodu jsme se nedostali, takže obklady, dlažby, dveře, zkrátka všechno jsme museli vybrat na internetu. Chtěli jsme si to všechno barevně sladit, což z obrázků na internetu bylo šílené.
Kdybyste se měli vrátit na začátek, je něco, co byste udělali jinak?
Šárka: Začali bychom stavět o něco dříve, protože v průběhu stavby došlo kvůli pandemii ke zdražení všech stavebních materiálů. Ale lokalitu nebo firmu bych určitě neměnila.
Zahradu jste si realizovali sami?
Šárka: Zahradník nám navrhnul zahradu s tím, že jsme mu napsali, jaké chceme stromy a keře, protože jsme nevěděli jak vše poskládat, jakou půdu má která rostlina ráda nebo nerada, kolik slunce potřebuje a podobně. Zahradník následně realizoval sázení keřů podél nejdelších stran pozemku a zasadil velké stromy. Realizace ostatních stromů a záhonů byla již v naší režii.
Co byste doporučili lidem, kteří stojí před tím velkým krokem stavby domu?
Šárka: Plánovat, plánovat, plánovat, ještě předtím, než se do něčeho pustí. Opravdu si sednout a sepsat si pozitiva a negativa. Ať už k pozemku, umístění domu v zástavbě, v domě pak orientaci místností ke slunci, dostatek úložného prostoru. Aby měli jasno, jestli chtějí na pozemku něco pěstovat, zda chtějí bazén, dětské hřiště, aby měli kam uložit kola, zahradní nábytek a pečlivě vybírat zahradního architekta.
Tomáš: Je dobré se podívat i na realizované domy stavební firmy, která jim bude dům stavět, aby věděli, jak jejich domy vypadají po letech. Když člověk nemá zkušenost, samozřejmě se dozví něco na internetu, ale o firmě jako takové se nedozví nic moc. Lepší je jít se podívat přímo dovnitř. Je také dobré vidět, jak firma pracuje, jak vypadá pracoviště, jak se řemeslníci pohybují a tak dále. Naši řemeslníci byli mladí, energičtí lidé a šlo jim to od ruky.
Oběma vám mockrát děkuji za rozhovor.
Šárka: Rádo se stalo.
Tomáš: Také děkujeme za rozhovor.
P.S. Chcete vědět, kde se dá na rozpočtu výstavby domu ušetřit a naopak kde má cenu neškudlit? Navštivte online stavební veletrh Veleton, který se uskuteční 19. ledna – 1. února 2026. Vstupenku lze stáhnout ZDARMA na tomto odkazu (počet vstupenek je limitován) . Těšit se můžete na množství inspirace, živých přednášek, konzultací s odborníky i slevové vouchery.
SDÍLET ČLÁNEKInformace o stavbě:
Dispozice: 4+kk
Rozměry stavby: 15 x 8,5 m
Zastavěná plocha: 128 m2 (včetně terasy)
Užitná plocha: 96 m2
Typ konstrukce: rámová sendvičová konstrukce
Energetický standard: nízkoenergetický
Doba výstavby hrubé stavby: 3 týdny
Celková doba výstavby: 5,5 měsíce
Realizační firma: DD Haus s.r.o.
Plánujete stavbu rodinného domu? Navštivte ONLINE KURZ, kde se naučíte, jak správně postupovat i na co si dát pozor. více informací »
Autor:
Bc. Kateřina Pospíšilová
Redaktorka Dřevostavitele
Vydáno dne:
02.12.2025
Photocredit: © Dřevostavitel.cz
Zdroj: Rozhovor s majiteli dřevostavby

Michaela: Místo bytu máme dřevostavbu, vyšlo nás to levněji, máme klid a zahradu
Přečtěte si rozhovor s paní Michaelou, která spolu s rodinou vyměnila byt za dřevostavbu a nám prozradila, jaké komplikace museli řešit.

Martin a Jana si pořídili vysněné bydlení u Pardubic. Jejich dům byl postavený za pouhý 1 den
Martin a Jana si postavili nenápadný bungalov a splnili si tím sen o vlastním bydlení. Kolik protopí a proč se rozhodli pro stavbu na klíč?

Neměli našetřeno a museli platit drahý nájem v Pardubicích. Stavební firma jim vyšla nečekaně vstříc
„Neměli jsme našetřené miliony a zároveň jsme platili drahý nájem v Pardubicích,“ popisují manželé náročnou finanční situaci. V rozhovoru popsali své zkušenosti se stavební firmou, která je nenechala ve štychu.

Mnoho třicátníků zaujal nový rodinný bungalov na klíč (4kk). Užitná plocha a dostupná cena se staly hlavním vodítkem
Nejenže mezi ostatními vyniká příznivou cenou, díky ideální zastavěné ploše si rodiny mohou koupit menší (levnější) stavební pozemek a přitom mít velkou zahradu. Na užitné ploše přitom ochuzeni nebudou.

Mladá rodina si nechala postavit dům od zkušené dvojice stavařů z Hradce. Po čtyřech letech bydlení jsme nahlédli dovnitř
Když začali uvažovat o stavbě, netušili, že jejich cesta k vysněnému bydlení bude nakonec mnohem rychlejší, než čekali.
NEJHLEDANĚJŠÍ DOMY
- Bungalovy do L
- Bungalovy inspirace
- Bungalovy na klíč
- Dřevostavby bungalovy
- Dřevostavby do 1,5mil
- Dřevostavby na klíč
- Moderní domy
- Modulové domy
- Montované domy na klíč
- Projekty bungalovů
- Rodinné domy na klíč
- Roubenky na klíč
- Sruby na klíč
- Tiny house
UŽITEČNÉ
NOVINKY E-MAILEM ZDARMA
Přihlaste se k odběru a dostávejte nejžhavější novinky:
