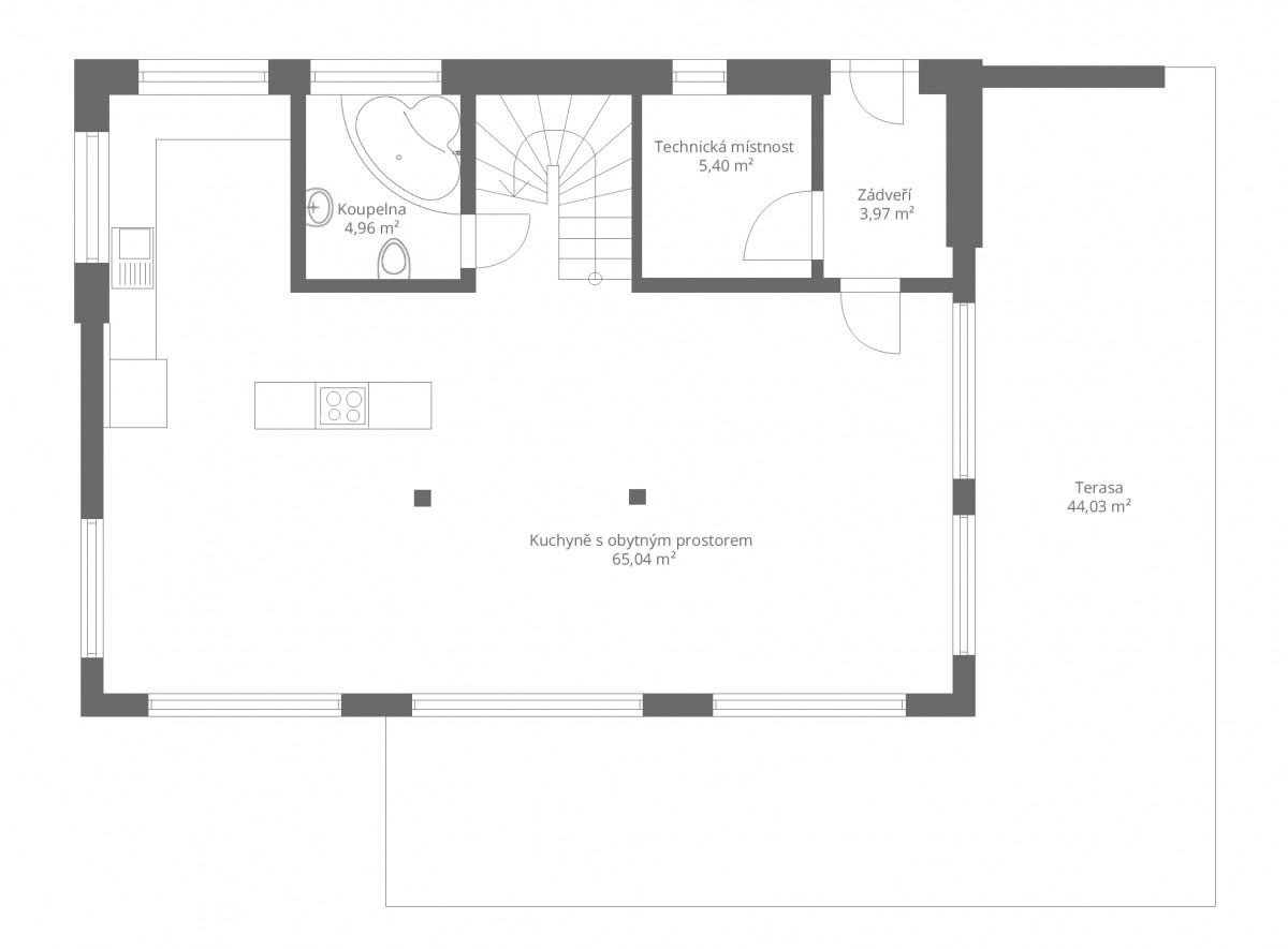
Půdorys patrového rodinného domu s dispozicí 5+kk (přízemí)

Pokračujte ve čtení níže ↓
Život v Praze a v Jihoafrické republice se pro manžele stal impulzem ke stavbě moderního domu, netradiční masivní dřevostavby. Byl to jejich společný sen, ale cestu neměli jednoduchou. Na veletrhu se k nim většina stavebních firem, které si pan majitel vybral jako potenciální dodavatele, otáčela zády, až na jednu. Přitom v té době už měli stavební pozemek, a ne ledajaký. Ke svému rodinnému životu si vybrali unikátní místo s dechberoucími výhledy. Pozemek však bezchybný nebyl, manželé měli na výstavbu jen pět měsíců v roce.
Photocredit: © Dřevostavitel.cz
číst více
