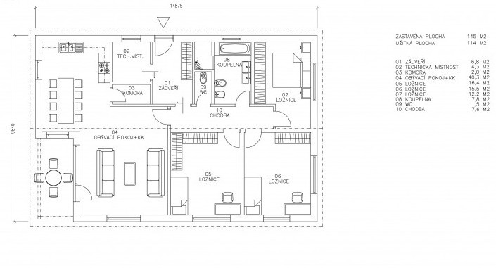
Na užitné ploše 114 metrů čtverečních se nachází deset místností (tři ložnice, obývací pokoj propojený s kuchyní, spíž, technickou místnost...)

Pokračujte ve čtení níže ↓
Jestliže činí váš čistý příjem alespoň 25 tisíc korun a příjem vašeho partnera stejně tak, s velkou pravděpodobností dokážete vytvořit finanční plán k dosažení nového rodinného domu. Jedná se o přízemní dřevostavbu s užitnou plochou 114 metrů čtverečních a zastavěnou plochou 145 metrů čtverečních. Dům zaujímá prostý tvar a svým návrhem vyhoví takřka každému územnímu plánu.
P.S. Řešíte stavbu domu, možnosti větrání a vytápění? Navštivte online stavební veletrh Veleton, který se uskuteční 19. ledna – 1. února 2026. Vstupenku lze stáhnout ZDARMA na tomto odkazu (počet vstupenek je limitován) . Těšit se můžete také na množství inspirace, živých přednášek, konzultací s odborníky i slevové vouchery.
Photocredit: Katalog projektů Dřevostavitele (se souhlasem)
číst více
