Nový bungalov si mohou dovolit i domácnosti s příjmem do 50 tisíc korun. Má krytou terasu, spíž a tři ložnice
Jestliže činí váš čistý příjem alespoň 25 tisíc korun a příjem vašeho partnera stejně tak, s velkou pravděpodobností dokážete vytvořit finanční plán k dosažení nového rodinného domu. Jedná se o přízemní dřevostavbu s užitnou plochou 114 metrů čtverečních a zastavěnou plochou 145 metrů čtverečních. Dům zaujímá prostý tvar a svým návrhem vyhoví takřka každému územnímu plánu.

Máte příjem 50 tisíc korun?
S čistým příjmem domácnosti kolem 50 tisíc korun měsíčně dnes není sen o vlastním rodinném domě nedosažitelný. Jediné, co potřebujete, je promyšlený plán. Klíčem je kombinace vlastních úspor, rozumně nastavené hypotéky a výběru domu s úspornou dispozicí. Pokud máte alespoň 15–20 % z ceny domu ve vlastních prostředcích nebo pozemek, který lze použít jako zástavu, tento dům si s velkou pravděpodobností můžete dovolit. Při běžné úrokové sazbě okolo pěti procent a splatnosti na 30 let by měsíční splátka hypotéky vycházela na zhruba 25 až 28 tisíc korun.
🔴 Mimořádná zpráva:
Zítra se soutěží o bezpečnostní alarm a čistírnu odpadních vod. Soutěž probíhá na festivalu stavby, bydlení a vytápění a zúčastnit se můžete online.
Chci soutěžit →Ušetřete a dosáhněte na hypotéku
Základem úspěchu je realistický rozpočet a promyšlená strategie financování. Velkou roli hrají i dotační programy, které častokrát sníží náklady na technologie až o několik set tisíc korun. V konečném důsledku však domácnosti s tímto příjmem nejlépe obstojí, pokud zvolí jednodušší a energeticky úsporný typ stavby, ideálně bungalov s menší zastavěnou plochou, který lze částečně dokončit svépomocí.
Moderní dům pro čtyřčlennou rodinu
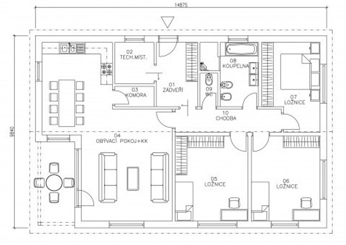
Ideálním kandidátem je nový rodinný dům, který se už objevil v hledáčku mnoha rodin. I při relativně malé zastavěné ploše, která činí 145 metrů čtverečních, má domácnost poměrně hodně prostoru uvnitř domu. Na užitné ploše 114 metrů čtverečních se nachází deset místností (tři ložnice, obývací pokoj propojený s kuchyní, spíž, technickou místnost...). Dům má navíc velmi prakticky řešenou venkovní terasu, o čemž se můžete přesvědčit sami na fotografiích níže.
Dispozice rodinného domu 4+kk
Jakmile vejdete dovnitř této dřevostavby, ocitnete se v prostorné předsíni. Po vaší pravé ruce uvidíte vstup do technické místnosti a naproti vám posuvné dveře vedoucí do menší chodby. Zde se nachází samostatné WC, koupelna, ložnice a dva dětské pokoje. Užitnou plochu jednotlivých místností naleznete níže.
Z chodby se také pohodlně dostanete do hlavní obytné místnosti. Zde se nachází obývací pokoj a za rohem pak jídelna. Dveře do spíže vedou právě z kuchyně, která je na jídelnu napojená. Z této dokonale prosvětlené místnosti, které dominuje prosklený roh tvořící výřez v obdélníkovém půdorysu domu, se dostanete na terasu, kterou si zamilujete díky společně stráveným chvílím se svou rodinou.
Dům lze postavit ve třech variantách, které se liší cenou
Jak jsme již zmiňovali, jednou z možností, jak dům finančně zvládnout, je rozložit jeho výstavbu do dvou etap. První pokryje základovou desku, hrubou stavbu a střechu, druhá pak interiéry a dokončovací práce podle vašich možností. Abyste tedy ušetřili, nevolte dům na klíč, ale dům na dokončení. Jedná se o mezistupeň mezi hrubou stavbou a domem na klíč (dokončovací práce si provádíte svépomocí). Více informací o stupních dokončení rodinného domu jsme popsali blíže v článku zde.
Aktuální cena rodinného domu 4+kk
Řešením tedy bude rozložit investici v čase a přizpůsobit ji vašemu rozpočtu, aniž by bylo nutné sahat po rizikových úvěrech. Pokud by vás zajímala přesná cena typového domu a další podrobnosti, přejděte na kartu projektu zde. Pohlídejte si, zda je v ceně za typový dům i základová deska. Některé společnosti ji do celkové ceny nezahrnou, jiné ano. V případě dnešního rodinného bungalovu je základová deska v ceně zahrnuta
P.S. Řešíte stavbu domu, možnosti větrání a vytápění? Navštivte online stavební veletrh Veleton, který se uskuteční 19. ledna – 1. února 2026. Vstupenku lze stáhnout ZDARMA na tomto odkazu (počet vstupenek je limitován) . Těšit se můžete také na množství inspirace, živých přednášek, konzultací s odborníky i slevové vouchery.
SDÍLET ČLÁNEKAutor:
Bc. Kateřina Pospíšilová
Redaktorka Dřevostavitele
Vydáno dne:
17.10.2025
Photocredit: Katalog projektů Dřevostavitele (se souhlasem)
Zdroj: House and garden

Levný pozemek u Brna nikdo nechtěl. Manželé na něm zvládli postavit patrový dům s 40m2 sklepem
Žádná z 11 stavebních firem nedokázala naplnit jejich představy. Dvanáctá firma, kterou si nakonec zvolili, jim dům na míru postavila i v extrémně svažitém terénu.

Dům na skále vyrostl za dva dny. „Neznáme nikoho jiného, kdo by měl stavbu hotovou na čas,“ říkají majitelé
„S Pavlem jsem poprvé v životě našla odvahu pustit se do stavby domu,“ říká Vlaďka. A rozhodně nelituje. Společně si postavili originální dvoupatrovou dřevostavbu.
NEJHLEDANĚJŠÍ DOMY
- Bungalovy do L
- Bungalovy inspirace
- Bungalovy na klíč
- Dřevostavby bungalovy
- Dřevostavby do 1,5mil
- Dřevostavby na klíč
- Moderní domy
- Modulové domy
- Montované domy na klíč
- Projekty bungalovů
- Rodinné domy na klíč
- Roubenky na klíč
- Sruby na klíč
- Tiny house
UŽITEČNÉ
NOVINKY E-MAILEM ZDARMA
Přihlaste se k odběru a dostávejte nejžhavější novinky:
