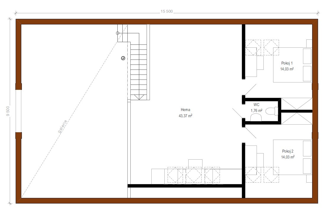
Dispozice moderního rodinného domu byla vytvořena na míru majitelům a je velmi promyšlená – první patro

Pokračujte ve čtení níže ↓
Když se manželé rozhodli postavit svůj vysněný dům, měli několik podmínek. Dům musí být dřevěný, moderní a jelikož mají malé děti, hlavně útulný. Roubenka z lepených hranolů se tak stala jasnou volbou. Už při vstupu do interiéru je jasné, že největší chloubou domu je velkorysý krb, který se stal srdcem celé dřevostavby.
P.S. Řešíte stavbu domu, možnosti větrání a vytápění? Navštivte online stavební veletrh Veleton, který se uskuteční 19. ledna – 1. února 2026. Vstupenku lze stáhnout ZDARMA na tomto odkazu (počet vstupenek je limitován) . Těšit se můžete také na množství inspirace, živých přednášek, konzultací s odborníky i slevové vouchery.
Photocredit: Katalog projektů Dřevostavitele (se souhlasem)
číst více
