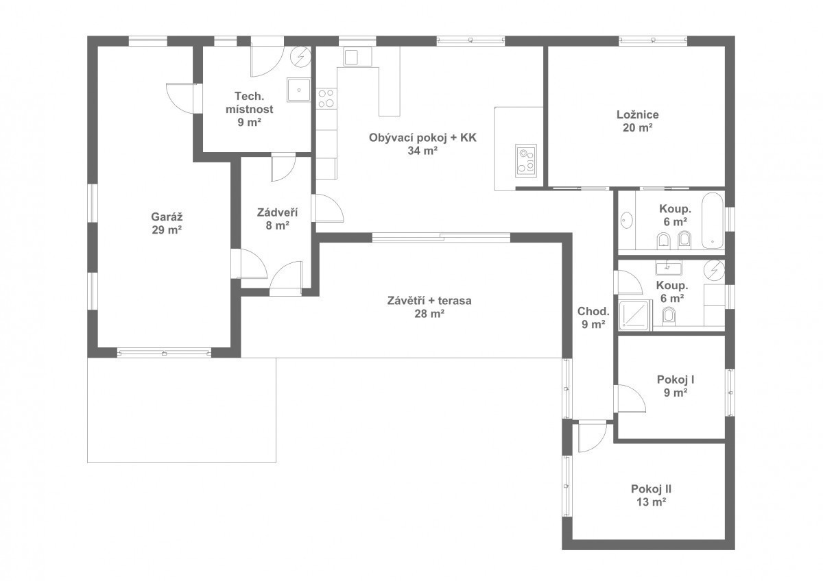
Má tři ložnice, tedy dvě ložnice a pracovnu, další obytnou místnost, takže podle českého označení 4+kk. Dále má ze zádveří průchod do garáže, na jejímž konci je malá dílnička

Pokračujte ve čtení níže ↓
Žena, která strávila zhruba třicet let života v USA a za tu dobu se přestěhovala sedmadvacetkrát, má srovnání z první ruky. Bydlela v několika amerických dřevostavbách, včetně domu starého osmdesát let. Po návratu do Česka viděla v oblasti bydlení obrovské rozdíly. Po několika měsících se rozhodla o své zkušenosti veřejně promluvit.
P.S. Chcete vědět, kde se dá na rozpočtu výstavby domu ušetřit a naopak kde má cenu neškudlit? Navštivte online stavební veletrh Veleton, který se uskuteční 19. ledna – 1. února 2026. Vstupenku lze stáhnout ZDARMA na tomto odkazu (počet vstupenek je limitován) . Těšit se můžete také na množství inspirace, živých přednášek, konzultací s odborníky i slevové vouchery.
číst více
