1651

Pokračujte ve čtení níže ↓
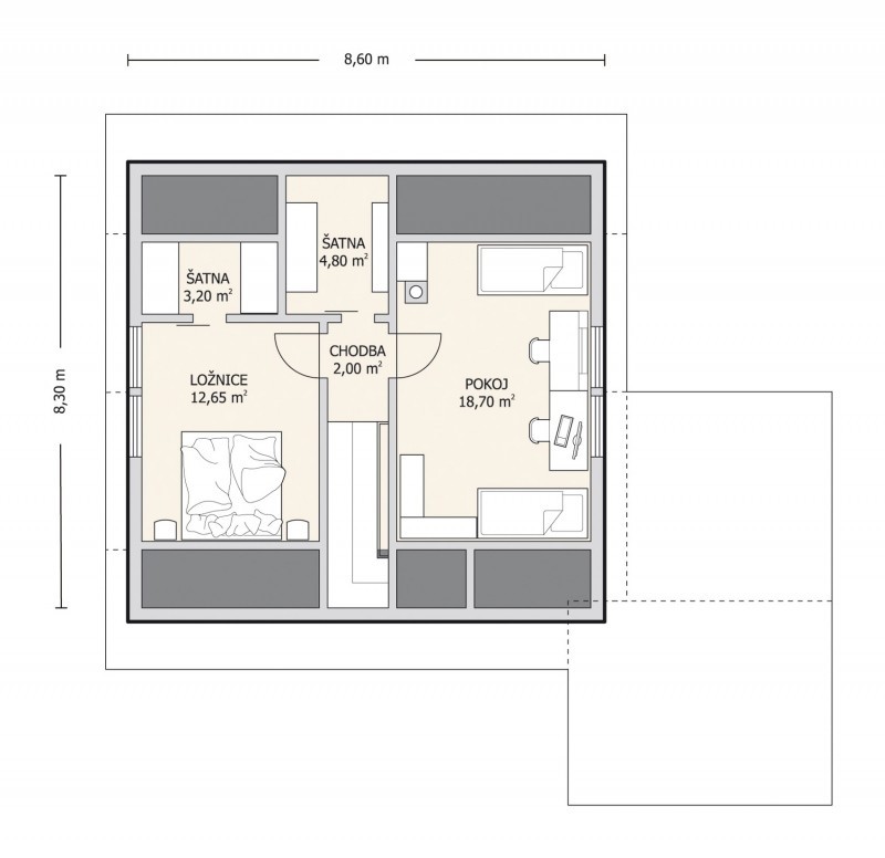
Některé rodiny mají nižší příjmy, ale i přesto sní ve velkém. A to je dobře. Velký a moderní rodinný dům si může dnes bohužel dovolit jen menší skupina lidí, ti ostatní vyhledávají domy s rozumným poměrem ceny a velikosti. A takových domů je na trhu spousta, člověk jen musí vědět, kde hledat.
P.S. Řešíte stavbu domu, možnosti větrání a vytápění? Navštivte online stavební veletrh Veleton, který se uskuteční 19. ledna – 1. února 2026. Vstupenku lze stáhnout ZDARMA na tomto odkazu (počet vstupenek je limitován) . Těšit se můžete také na množství inspirace, živých přednášek, konzultací s odborníky i slevové vouchery.
Photocredit: Katalog projektů Dřevostavitele (se souhlasem)
číst více
