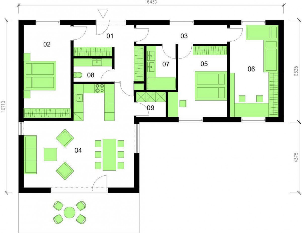
Dominantou rodinného domu je prostorný obývací pokoj propojený s kuchyní a jídelním koutem, který tvoří přirozené centrum domu

Pokračujte ve čtení níže ↓
Rostoucí ceny bydlení nutí české rodiny hledat úspornější cesty k vlastnímu bydlení. Zájem se proto ubírá směrem k menším rodinným domům, které díky chytře navržené dispozici nabídnou vše, co rodina potřebuje. V poslední době se navíc do podvědomí mnoha párů dostává nový přízemní dům s dispozicí 4kk a užitnou plochou 114 m2, jenž tyto požadavky splňuje a zároveň nabízí dostupnou cenu.
P.S. Řešíte stavbu domu, možnosti větrání a vytápění? Navštivte online stavební veletrh Veleton, který probíhá 19. ledna – 1. února 2026. Vstupenku lze stáhnout ZDARMA na tomto odkazu (počet vstupenek je limitován) . Těšit se můžete také na množství inspirace, živých přednášek, konzultací s odborníky i slevové vouchery.
Photocredit: Katalog projektů Dřevostavitele (se souhlasem)
číst více
