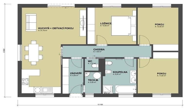
Finančně dostupný dům si oblíbily hlavně čtyřčlenné rodiny. I na menší parcele jim zůstane dost místa na zahradu

Pokračujte ve čtení níže ↓
Manželé uvažovali nad stavbou vlastního domu, ale jejich okolí je odrazovalo. Říkali, že budou čekat roky na stavební povolení a i když si nechají postavit dřevostavbu, výstavbu neurychlí. Manželé se však nezalekli a vlastní dům si i přesto postavili. „Nebýt pandemie, v důsledku které chyběl stavební materiál, bydlíme do roka,“ shodují se. Přišli na způsob, díky kterému může každý urychlit proces schvalování na stavebním úřadě.
P.S. Chcete vědět, kde se dá na rozpočtu výstavby domu ušetřit a naopak kde má cenu neškudlit? Navštivte online stavební veletrh Veleton, který se uskuteční 19. ledna – 1. února 2026. Vstupenku lze stáhnout ZDARMA na tomto odkazu (počet vstupenek je limitován) . Těšit se můžete také na množství inspirace, živých přednášek, konzultací s odborníky i slevové vouchery.
Photocredit: Katalog projektů Dřevostavitele (se souhlasem)
číst více
