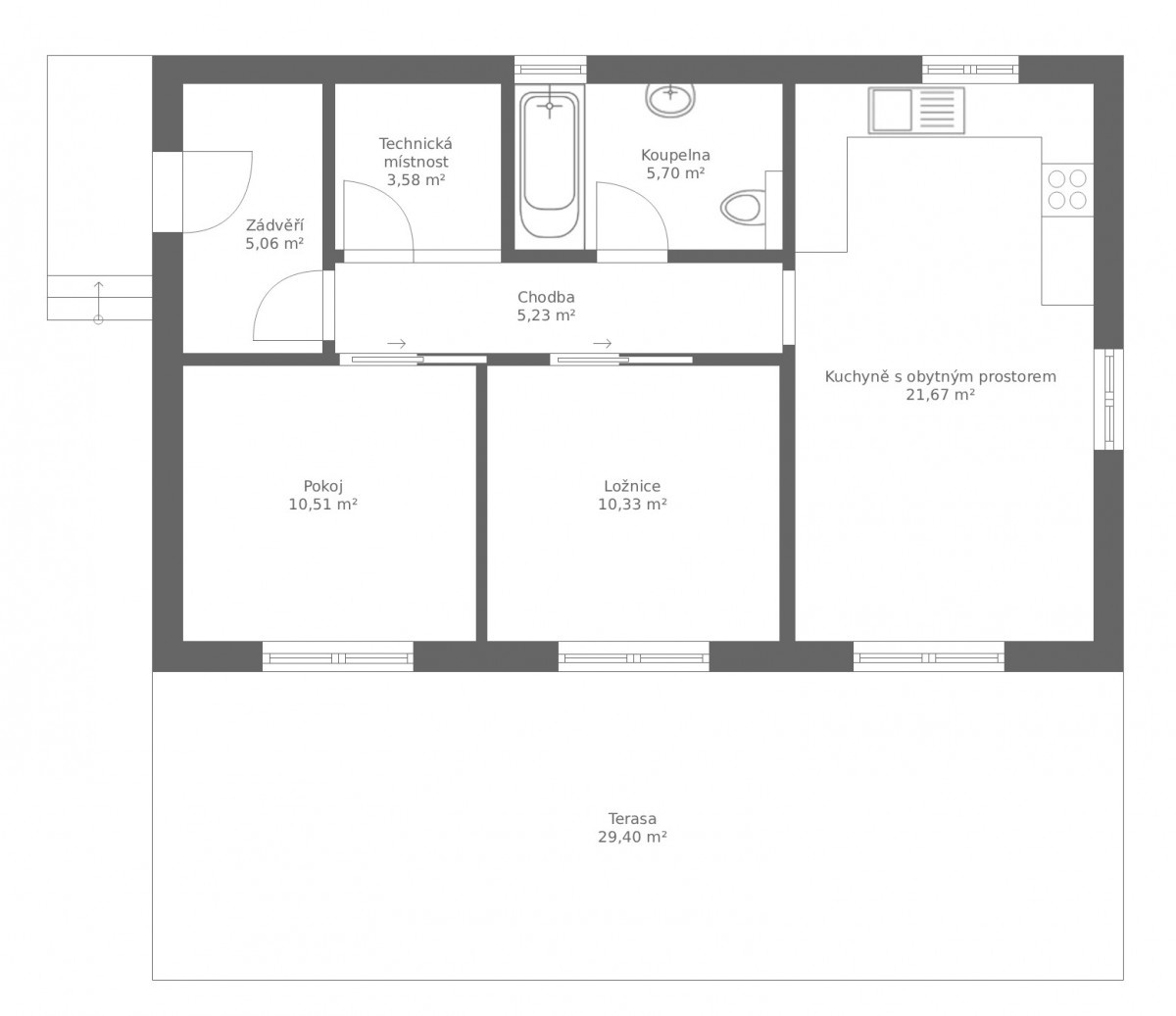
Půdorys přízemního rodinného domu 3+kk u Českých Budějovic

Pokračujte ve čtení níže ↓
Po rozvodu zůstali Gabriela a Ľubomír téměř bez prostředků. Společně se však rozhodli investovat poslední peníze do mobilheimu a začít v Českých Budějovicích od nuly. V té době ani netušili, že se díky tomuto provizornímu bydlení nakonec dostanou až k vysněné dřevostavbě u rybníku. „Šli jsme sem z toho malinkého mobilheimu, a i když jsme si sem za ty dva roky nakoupili hromadu věcí, opravdu nám to stačí,“ popisuje Gabriela spokojený život v domě o 60 metrech čtverečních.
P.S. Chcete vědět, kde se dá na rozpočtu výstavby domu ušetřit a naopak kde má cenu neškudlit? Navštivte online stavební veletrh Veleton, který se uskuteční 19. ledna – 1. února 2026. Vstupenku lze stáhnout ZDARMA na tomto odkazu (počet vstupenek je limitován) . Těšit se můžete také na množství inspirace, živých přednášek, konzultací s odborníky i slevové vouchery.
Photocredit: Se souhlasem majitelů
číst více
