Za 200 tisíc koupili mobilheim na provizorní bydlení. Po letech ho prodali a postavili si vysněný dům v Čechách
Po rozvodu zůstali Gabriela a Ľubomír téměř bez prostředků. Společně se však rozhodli investovat poslední peníze do mobilheimu a začít v Českých Budějovicích od nuly. V té době ani netušili, že se díky tomuto provizornímu bydlení nakonec dostanou až k vysněné dřevostavbě u rybníku. „Šli jsme sem z toho malinkého mobilheimu, a i když jsme si sem za ty dva roky nakoupili hromadu věcí, opravdu nám to stačí,“ popisuje Gabriela spokojený život v domě o 60 metrech čtverečních.

Gabrielo, Ľubomíre, jak vznikla myšlenka toho, že si postavíte nový dům?
Gabriela: Po rozvodu jsem odešla ze severu Čech a začínala jsem v Českých Budějovicích úplně od nuly. S Ľubomírem jsme se poznali přes internet, a protože on nechal své bývalé ženě dům a já svému muži taky, neměli jsme nic. Byli jsme v prekérní situaci, chtěli jsme žít spolu, ale ani jeden z nás neměl dostatek financí. Skončilo to tak, že jsme si pořídili mobilheim. Později nám podnikání docela dobře vynášelo, a tak jsme se rozhodli, že ho prodáme a postavíme si skutečný dům. Mobilheim jsme tedy nabídli k prodeji a měli jsme obrovské štěstí na kupce. Zaplatili nám tolik, že jsme měli hned ze startu na tento dům.
Jak byl uvnitř velký?
Gabriela: Mobilheim byl maličký, měl asi 4 metry na šířku a asi 11 metrů na délku. Exteriér byl obložený dřevem jako roubenka, byla tam malá ložnice a u ní krásná terasa. V takovém duchu jsme chtěli i náš dům a myslím si, že se to povedlo. V mobilheimu bylo vlhko, stromy kolem nás rostly pořád do výšky a za těch 10 let začaly stínit. Navíc to byl starý mobilheim, stál nás tehdy asi 200 000 Kč.
Poznámka redakce: Jestliže by vás více zajímalo provizorní bydlení Gabriely a Ľubomíra, přečtěte si navazující rozhovor zde. Pokud vás naopak zajímá jejich bydlení ve skromném a cenově dostupnějším domě, čtěte dále.
Pak jste se tedy rozhodli, že mobilheim prodáte a postavíte si nový dům. Proč zrovna dřevostavbu?
Gabriela: Ano, přesně tak. Volba dřevostavby byla zaprvé kvůli rychlosti a zadruhé to vyšlo i levněji (původně jsme kalkulovali se zděnou stavbou). Tehdy jsem se dočetla, že se dům hezky vyhřeje, a dnes to můžu potvrdit. Manžel si u stavební společnosti dokonce prosadil teplovodní podlahové topení, což se v té době moc nedělalo, a je to moc fajn. Už tady bydlíme necelé dva roky, a i když dům zaujímá jen 62 metrů čtverečních, je velký tak akorát. Větší bych ani nechtěla, je tady hned vyluxováno, vytřeno, a hlavně je to hned vyhřáté.
Ľubomír: Je to dvakrát větší, než byl původní mobilheim.
🔴 Mimořádná zpráva:
Zítra se soutěží o bezpečnostní alarm a čistírnu odpadních vod. Soutěž probíhá na festivalu stavby, bydlení a vytápění a zúčastnit se můžete online.
Chci soutěžit →Jaká byla vaše kritéria na nový stavební pozemek?
Ľubomír: Hledali jsme asi čtyři roky a já už pak odmítal jezdit po pozemcích, protože všude byl nějaký problém. Poslední rok, kdy už bylo hledání intenzivnější, jsme tudy projížděli na kole a já viděl tuto zahradu. Řekl jsem ženě, aby se podívala na inzerát, a ona posléze řekla, že by tady chtěla bydlet. Netrvalo dlouho, našel se kupec pro náš mobilheim a my si mohli koupit tento pozemek.
Nevadí vám otevřený prostor? Cyklisté i projíždějící auta vám vidí na zahradu...
Gabriela: Zpočátku jsem ani nechtěla chodit ven, když jsem pracovala na zahrádce, každý se koukal. Ale už jsem si zvykla. Od té doby, co máme hotovou terasu, tady sedím, pracuju na počítači a užívám si výhled na rybník.
Řešili jste s koupí pozemku něco nestandardního? Něco, na co by si měli ostatní dát pozor?
Gabriela: My jsme měli opravdu štěstí. Prodejce pozemku byl moc hodný, sice byl neústupný, pokud šlo o cenu, ale jinak jsme měli kliku úplně na všechno.
Ľubomír: Pozemek byl kompletně ohrazený, a navíc tu byla elektřina. Nebyla tu jen voda, takže jsme pak museli vybudovat přípojku.
A zadržujete na pozemku dešťovou vodu?
Gabriela: Ne a právě toto byla asi největší chyba, kterou jsme udělali. Vyčítám si, že jsme v době projektování domu neposlechli zkušené. Obávali jsme se totiž, že by se nám razantně zvedl rozpočet. Žádnou retenční nádrž jsme neudělali a teď je to docela problém, voda odtéká do přírody.
Přejděme ke stavebnímu povolení. Vyřizovali jste si ho sami?
Gabriela: Veškerý inženýring nám dělala stavební společnost, od které jsme si nechali postavit dům.
Ľubomír: Na přelomu března a dubna 2023 se podávala žádost na stavební úřad. A na začátku května bylo stavební povolení vyřízené a my tak začali realizovat základovou desku.
Základovou desku jste si stavěli svépomocí?
Gabriela: Ne, tu nám realizovala místní menší firma. Vyšlo to levněji, než kdybychom si ji nechali stavět od dodavatele stavby.
Na domě tedy pracovala stavební firma i externí řemeslníci?
Gabriela: Ano. Dostala jsem od pana jednatele stavební firmy Moravské dřevostavby precizní rozpočet, kde jsem měla vypsanou každou položku i s cenou. V rámci stavby domu na dokončení jsem si nechala doporučit šikovné místní řemeslníky a po zkontaktování jsme se opravdu dostali k dobrým cenám.
Proč jste si vybrali právě tuto stavební firmu?
Ľubomír: Zpočátku jsme byli v kontaktu asi se čtyřmi firmami a tuto jsme vybrali proto, že nám mohli postavit dům hned a také se nám líbily jejich ceny.
Gabriela: Už 30 let pracuji jako obchodník a docela dobře dokážu i po telefonu odhadnout, jak moc je daný člověk solidní a schopný a jestli z něj může být spolehlivý obchodní partner. Z mého pohledu hodně záleží na tom, jak rychle člověk dokáže reagovat, zda odpoví okamžitě, nebo na jeho odpověď čekám tři týdny. A myslím si, že jedním z hledisek výběru byla i nadstandardně rychlá reakce pana jednatele. Celkově byla komunikace zdvořilá a milá. Hlavně byl velmi ochotný a měl se mnou neuvěřitelnou trpělivost. Jsem náročný člověk, který má opravdu spoustu požadavků. Dokonce přistoupili i na teplovodní podlahové topení, což do té doby neradi realizovali, dnes je to u nich na denní bázi. Zkrátka si mě získal tím, jak reagoval. U ostatních firem mě odradil liknavý přístup.
Měli jste stanovený rozpočet, do kterého jste se potřebovali vejít?
Gabriela: Myslím si, že ano. Vlastně i způsob hrazení byl fajn, firma to má rozdělené na etapy. Upřímně jsem se toho trochu bála, protože jsem na internetu četla různé výstrahy. Ráda bych varovala ostatní před tím, ať nikdy neplatí nic dopředu a ať nikdy ani neskládají nějaké velké zálohy. Na této firmě se mi právě líbilo, že vždycky odvedli nějaký kus práce, tu práci si vyfakturovali, a když obdrželi naši platbu, tak pokračovali v další práci. A já měla jistotu, že další práci udělají. Vřele bych doporučovala, ať si na toto dají lidé pozor.
Zmiňovali jste vytápění podlahovým topením. Zajímalo by mě, jestli máte i jiný zdroj a případně jak vycházel energetický štítek?
Gabriela: Topíme jen podlahovým topením. V obýváku máme postavený i komín a přípravu na topení v kamnech, jen jsme si je ještě nepořídili. Za zimu jsme nepocítili potřebu mít tu kamna ani na vteřinu. Tenkrát nám říkali, že kdybychom tady zatopili, bylo by tu velké teplo. Náš dům je totiž poměrně malý, krbová kamna by musela mít nízký výkon. Nicméně je plánujeme koupit, abychom tu měli náhradní zdroj vytápění. U tepelného čerpadla jsme vyloženě závislí na přísunu elektrické energie, a kdyby došlo v zimě k výpadku, jsme tu tak trochu odkázáni.
Poznámka redakce: Jestliže by vás více zajímalo vytápění jejich menšího domu, včetně provozních nákladů, přečtěte si navazující rozhovor zde. Pokud vás naopak zajímá jejich bydlení ve skromném a cenově dostupnějším domě, čtěte dále.
Užitná plocha domu je poměrně malá. Nemáte problém s nedostatkem úložného prostoru?
Gabriela: Vůbec ne, 62 m2 nám bohatě stačí. My jsme se sem vešli tak krásně se vším, co člověk k životu potřebuje. Šli jsme sem z toho malinkého mobilheimu, a i když jsme si za ty dva roky nakoupili hromadu věcí, opravdu nám to stačí. Je až neskutečné, jak tento malý prostor může vyhovovat dvěma lidem, kteří nejsou nikterak skromní. Můžu odpřisáhnout, že se sem vejdeme úplně se vším, včetně obrovské kuchyňské linky, u které jsem ani nedoufala, že se sem může vejít. Když jsem viděla tu novostavbu, působila opravdu malinká, a přesto je to neskutečně prostorný dům.
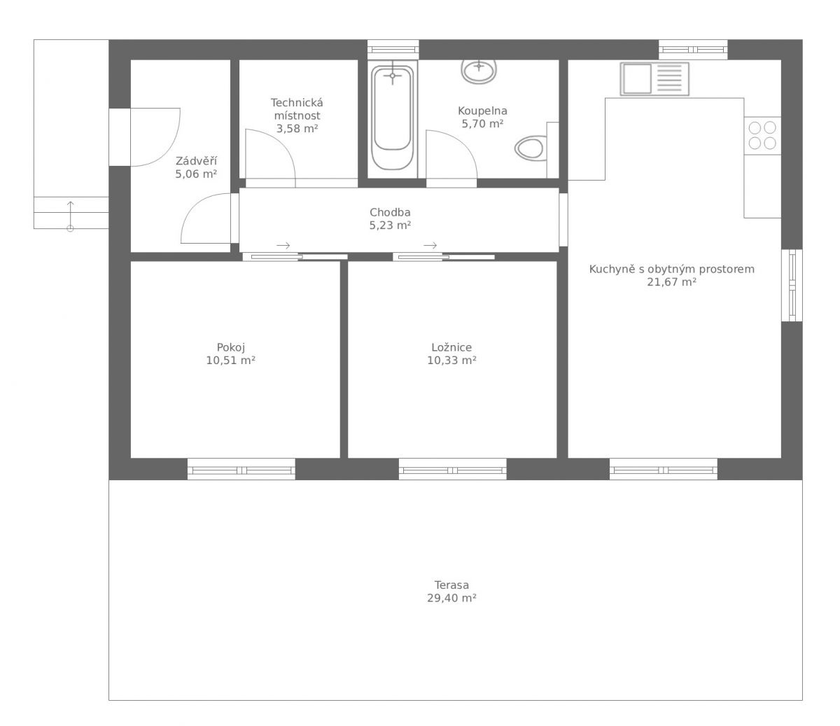
Popis dispozice domu 3+kk
Hlavní dveře jsou navržené z boční strany menší dřevostavby. Vstupujete do prostorného zádveří s velkou šatní skříní a pokračujete druhými dveřmi do centrální chodby. Po vaší levé ruce se nachází technická místnost a dále pak koupelna s toaletou, zatímco po vaší pravé ruce je navržená ložnice a pokoj pro hosty. Chodba na konci ústí do hlavní místnosti, která spojuje kuchyni, jídelnu a obývací pokoj. Odtud, z pokoje pro hosty a ložnice se majitelé mohou pohodlně dostat na venkovní terasu s úchvatnými výhledy.
A jak je to v domě s akustikou a hlučností?
Gabriela: My s tím nemáme problém. Pustím si televizi a v pokojíčku za stěnou, která vypadá, že je opravdu tenká, není nic slyšet. Když tu spala dcera s malým synem a on večer třeba plakal, slyšela jsem ho jen z dálky, skoro to nebylo slyšet. Takže i navzdory tomu, že tu jsou tenké stěny, tady opravdu není nic moc slyšet.
Jak probíhala kolaudace domu?
Gabriela: Přijela paní ze stavebního úřadu, byla velmi přívětivá a milá. Chtěla zábradlí na schody, ale chápala, že nemůžeme mít všechno hned, takže jsme se domluvili, že ho postavíme co nejdříve. A už na tom pracujeme.
Ľubomír: Chtěla vidět i hasicí přístroj, ale my ho neměli. Tak jsme se domluvili, že jí pošleme fotku, až tady bude.
Je něco, co byste udělali dnes na svém domě jinak? Třeba kdybyste stavěli znovu?
Gabriela: Jen to, že bychom ten dům o kousek protáhli.
Ľubomír: A nastudovali bychom si pořádně stavební dokumentaci, aby komín nebyl v pokojíku, ale na chodbě. Teď se totiž musí čistit z pokoje. To jsme si měli uvědomit, ale nenapadlo nás to.
Mockrát děkuji za rozhovor.
Gabriela: Rádo se stalo.
Ľubomír: Taky děkujeme za rozhovor.
P.S. Chcete vědět, kde se dá na rozpočtu výstavby domu ušetřit a naopak kde má cenu neškudlit? Navštivte online stavební veletrh Veleton, který se uskuteční 19. ledna – 1. února 2026. Vstupenku lze stáhnout ZDARMA na tomto odkazu (počet vstupenek je limitován) . Těšit se můžete také na množství inspirace, živých přednášek, konzultací s odborníky i slevové vouchery.
SDÍLET ČLÁNEKInformace o rodinném domě:
Dispozice: 3+kk
Rozměry stavby: 7 x 11 m
Zastavěná plocha: 77 m2
Užitná plocha: 62,2 m2
Typ konstrukce: prefabrikovaný certifikovaný stavební systém DMK
Skladba stěny: difuzně otevřená dřevostavba
Energetický standard: nízkoenergetický
Doba výstavby hrubé stavby: 2 týdny
Celková doba výstavby: cca 6 měsíců (bez základové desky)
Realizační firma: MORAVSKÉ DŘEVOSTAVBY s.r.o.
Plánujete stavbu rodinného domu? Navštivte ONLINE KURZ, kde se naučíte, jak správně postupovat i na co si dát pozor. více informací »
Autor:
Bc. Kateřina Pospíšilová
Redaktorka Dřevostavitele
Vydáno dne:
21.10.2025
Photocredit: © Dřevostavitel.cz
Zdroj: Rozhovor s majiteli dřevostavby

Dřevostavba s duší umělce
Dřevostavba pro výjimečné lidi – jak asi vypadá? V garáži Jaguár a na zahradě jacuzzi? Vůbec ne. Přečtěte si rozhovor se skvělým a skromným umělcem, který má rád krásné věci, ctí tradice a přírodu.

Rodinný dům k nastěhování za 6 měsíců
Rodinný domek v Havlíčkově Brodě byl kompletně zrealizován za neuvěřitelných šest měsíců a majitelé jsou s výsledkem nadmíru spokojení. Jak dokázali dům tak bleskurychle postavit?

Honza si nechal postavit hezký bungalov 4+kk ve své rodné vesnici u Jihlavy
Prohlédněte si typový bungalov 4+kk postavený nedaleko Jihlavy. Proč se majitel, pan Honza, rozhodl pro dřevostavbu a jak jeho dům vypadá?

Tomáš s Ludmilou si postavili moderní dřevostavbu. Vlezli se do 3 milionů
Tomáš a Ludmila (oba po rozvodu) se rozhodli pro nové společné bydlení. S dřevostavbami už měli své zkušenosti, proto jejich volba dopadla právě takto. Přečtěte si rozhovor přímo s majiteli a navštivte jejich dům ve fotoprohlídce.

Bungalov 5+kk do tvaru L s prostorným interiérem (s garáží i bez). Známe cenu
Hledáte ideální dům pro vaši rodinu? Představujeme vám typový dům Savignon s dispozicí 5+kk. Prohlédněte si bohatou fotogalerii i jeho prakticky řešený půdorys.

V USA ho nechali dělat podřadné práce, pak postavil polární stanici na Antarktidě. Rodák z Vysočiny dnes vede 5 úspěšných firem
Cesta podnikatele Tomáše Tesaře k úspěchu byla trnitá. Musel se vypracovat z ničeho a překonat při tom nejednu překážku. Přečtěte si o jeho příběhu v rozhovoru.

Díky novým kamnům mají v domě teplo dva dny bez topení. Stačí jen poprvé správně naložit
Katka, majitelka krásného bungalovu, nám v rozhovoru prozradila, co stálo za jejich volbou a jak jim bylo doporučeno zatápět, aby teplo v domě vydrželo bez přikládání dva dny. Vše se dozvíte v dnešním rozhovoru.

Manželé z Prahy si zamilovali Vysočinu. Na pozemku dědovy chalupy si postavili nový dům
Na klidném místě na Vysočině si nechali postavit nový dům. Svého rozhodnutí nelitují, i když v průběhu plánování narazili na mnoho překážek.

Na malém pozemku u Prahy si postavili rodinný dům s terasou. Jako jediný splňoval náročné požadavky na bydlení
Rodiny, pro které je život v Praze prioritou, investují do menších parcel. Málokteré se však podaří najít vhodný dům za méně peněz a s dostatečně velkou užitnou plochou. Až na dnešní pár.
NEJHLEDANĚJŠÍ DOMY
- Bungalovy do L
- Bungalovy inspirace
- Bungalovy na klíč
- Dřevostavby bungalovy
- Dřevostavby do 1,5mil
- Dřevostavby na klíč
- Moderní domy
- Modulové domy
- Montované domy na klíč
- Projekty bungalovů
- Rodinné domy na klíč
- Roubenky na klíč
- Sruby na klíč
- Tiny house
UŽITEČNÉ
NOVINKY E-MAILEM ZDARMA
Přihlaste se k odběru a dostávejte nejžhavější novinky:
