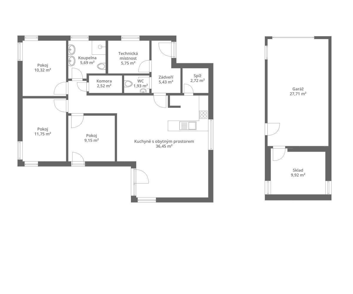
Zde vidíte dispoziční rozdělení rodinného domu. Majitelé si ho zrcadlově otočili, protože by jinak vycházela terasa na jihozápad

Pokračujte ve čtení níže ↓
Mnozí by koupi stavebního pozemku u železniční trati rovnou zavrhli, tento manželský pár však ne. Lokalita parcely jim vyhovovala a blízkost železnice nepovažovali za problém. Hluk je neobtěžoval tehdy ani dnes, mnohem náročnější byla administrativa, která předcházela získání stavebního povolení. Jejich příběh plný rozhodování i nejistoty si můžete přečíst v následujícím článku.
P.S. Chcete vědět, kde se dá na rozpočtu výstavby domu ušetřit a naopak kde má cenu neškudlit? Navštivte online stavební veletrh Veleton, který se uskuteční 19. ledna – 1. února 2026. Vstupenku lze stáhnout ZDARMA na tomto odkazu (počet vstupenek je limitován) . Těšit se můžete také na množství inspirace, živých přednášek, konzultací s odborníky i slevové vouchery.
Photocredit: © Dřevostavitel.cz
číst více
