Rodinný dům na klíč Patrová dřevostavba Easy 77
následující » « předchozí
734. místo

| Stavitel domu: | EASY HOMES |
| Konstrukční systém: | Masivní dřevěné panely |
| Provedení: | Patrový dům |
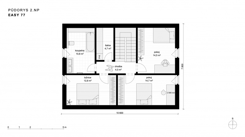
| Dispozice: | 5+kk |
| Energetický std.: | Nízkoenergetický |
| ↓ zobrazit více | |
| Zastavěná plocha: | 83 m2 |
| Užitná plocha: | 131 m2 |
| Cena stavby na klíč: | 4.604.240 Kč vč. DPH |
| Cena aktualizována: | 10. 04. 2026 ve 12:44 |
| Cena vč. zákl. desky: | ANO |
Závěrem
Easy 77 představuje chytré řešení pro všechny, kteří hledají plnohodnotné rodinné bydlení v patrovém domě s rozumnými náklady. Tento dům vychází ze základní stavební konstrukce EasyHomes, která zaruč
Podívejte se na zkušenosti s firmou EASY HOMES SOLUTIONS s.r.o. z pohledu jejích zákazníků.
Podělte se s námi o Váš názor:
Hodnocení: 2 z 5
