Tříčlenné rodiny se potřebují vejít i s pozemkem do 5 milionů. Velmi často proto volí tento dům na klíč za 3 miliony
Dostat se dnes s výstavbou domu i s pozemkem pod pět milionů je skoro zázrak, ale pořád reálný. Mnoho rodin má při plánování velké oči a zapomíná na tvrdou realitu. Koupit si velký pozemek a postavit na něm dům s užitnou plochou 200 m2 bylo možná kdysi standardem, ale dnes je to jinak. A to jak v případě velikosti pozemku, tak rodinného domu. Pak jsou tu však nízkoenergetické katalogové domy, které mladým rodinám dávají velkou šanci na vlastní bydlení.

Stavební pozemky v dobrých lokalitách
Postavit v dnešní době rodinný dům je pro mnoho lidí téměř nemožným cílem. Nejenže jsou náklady na stavbu domu velmi vysoké, pro mnoho rodin či párů je finančně náročné i samotné pořízení stavebního pozemku. Nemluvě o tom, že ne všechny jsou zasíťované a ne ke všem vede pevná komunikace. Je situace beznadějná? O samotném financování rodinného domu a možnostech, které lidé mají, se dozvíte více informací níže. Nyní jsme na základě veřejně dostupných zdrojů porovnali ceny inzerovaných stavebních pozemků dle krajů. Seřazené od cenově nejdostupnějších je najdete tady. A pokud už teď víte, že byste rádi postavili dům ve Středočeském kraji, možná by vás zajímal tento článek, ve kterém jsme se podrobně věnovali jedné konkrétní a velmi oblíbené vesnici.
🔴 Mimořádná zpráva:
Dnes se soutěží o bateriovou vrtačku a dvě palety tašek. Soutěž probíhá na festivalu stavby, bydlení a vytápění a zúčastnit se můžete online.
Chci soutěžit →Čím větší, tím lepší?
Stavební pozemek jde ruku v ruce s návrhem vašeho rodinného domu a to především v případě jeho velikosti. Češi tíhnou k velkým stavebním parcelám, kdo by chtěl taky žít na malém prostoru? Pravdou je, že dnešní ceny neumožňují mnoha rodinám koupi pozemku o výměře větší než je 1 000 m2. Atraktivnějšími nabídkami jsou spíše pozemky okolo 600 až 800 m2. A abyste i na takovém středně velkém pozemku měli po výstavbě velkou zahradu, uvažujte nad rodinným domem o menší zastavěné ploše.
Neobávejte se
Jednou z předních výhod dřevostaveb je jejich velká užitná plocha v poměru k zastavěné ploše. Díky užším stěnám vzniká v dřevostavbě více prostoru, než by vznikl ve zděném domě o stejné zastavěné ploše. Například dnešní typový dům zaujímá 76 m2 zastavěné plochy a jeho užitná plocha činí 63 m2. V případě zděného domu by se jednalo o zhruba 57 m2 a i když se nemusí zdát, že se jedná o velký rozdíl, jen díky volbě dřevěného konstrukčního systému získáte 6 m2 plochy navíc, kterou můžete využít jako šatnu, velkou spíž s komorou nebo koupelnu.
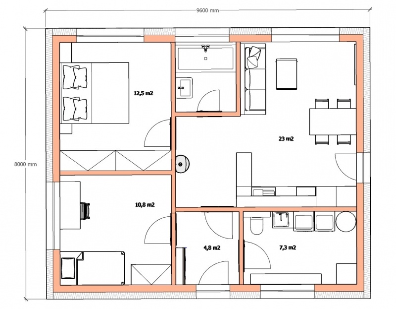
Dispozice rodinného domu
Dispozice rodinného domu je velmi prostá a svým rozložením ideální pro tříčlenné rodiny. Pokud plánujete čtyřčlennou rodinu a napadlo vás, že by vaše děti mohly mít spojený pokoj, v případě tohoto typového domu to nebude nejlepší řešení. Jeho užitná plocha totiž zaujímá necelých 11 m2, což je pro jedno dítě zcela ideální (pro dvě děti už stísněné).
Hlavními dveřmi vstupujete do prostornějšího zádveří, ze kterého se dále můžete dostat do velké technické místnosti (7,3 m2) a do dětského pokoje. Dveře do dětského pokoje samozřejmě můžete umístit jinam, kdyby vám toto umístění nevyhovovalo. Z předsíně se také dostanete do hlavní obytné místnosti, ve které je navržený obývací pokoj, jídelna a kuchyňský kout ve tvaru L. V obýváku je velká prosklená plocha, takže krásně vidíte do zahrady, přičemž na terasu se vstupuje mezi jídelnou a kuchyní. Z obýváku se nakonec dostanete do koupelny s toaletou a do ložnice.
Hypotéka (ne)postačí
Bydlet za pět milionů? Taková částka už dnes může stačit na menší, úsporný dům pro tříčlennou rodinu, pokud se dobře plánuje a pečlivě hlídají výdaje. Je ale fér říct, že pár desítek tisíc navíc může velmi snadno přibýt, ať už kvůli vybavení interiéru nebo drobným změnám během stavby. Pokud by vás zajímala přesná cena typového domu a další podrobnosti, přejděte na kartu projektu zde. Hypotéka může pokrýt základní část, zatímco zbytek lze dofinancovat například stavebním spořením, doplňkovým úvěrem nebo vlastními úsporami (o dalších možnostech financování se dozvíte více informací např. zde). Kombinace více zdrojů bývá často jistější cestou než spoléhat jen na jednu půjčku.
P.S. Řešíte stavbu domu, možnosti větrání a vytápění? Navštivte online stavební veletrh Veleton, který probíhá 19. ledna – 1. února 2026. Vstupenku lze stáhnout ZDARMA na tomto odkazu (počet vstupenek je limitován) . Těšit se můžete také na množství inspirace, živých přednášek, konzultací s odborníky i slevové vouchery.
SDÍLET ČLÁNEKAutor:
Bc. Kateřina Pospíšilová
Redaktorka Dřevostavitele
Vydáno dne:
09.10.2025
Photocredit: Katalog projektů Dřevostavitele (se souhlasem)
Zdroj: House and garden

„Když jsem šéfovi řekl, co si myslím, tak mě místo vyhazovu povýšil,“ vzpomíná úspěšný majitel stavební firmy a člen horské služby
Za svůj život si vyzkoušel nejednu profesi. Přesto nakonec zakotvil u stavařiny, ke které zdědil lásku po svém otci i dědovi.

Postavily si dvojdům obklopený sedmi sousedy. Tříleté trápení na úřadě ukončilo až pohotové jednání firmy
Chtěla dceři dopřát víc prostoru než v malém bytě na Liberecku, a protože s výstavbou domu neměla žádné zkušenosti, obrátila se na stavební firmu. V exkluzivním rozhovoru radí, na co si dát pozor a čeho se vyvarovat.

Našly neobvyklý katalogový dům a postavily si ho na společném pozemku. Dvě rodiny rázem vyřešily otázku nedostupného bydlení
Oběma rodinám se snížily náklady na stavební pozemek i dům na klíč zhruba o 50 % čili obě majitelky platily podstatně méně. Velkou výhodou je skutečnost, že se nejedná o sdílené bydlení.

Po šedesátce si postavila nový dům na důchod. Na strasti s podvodníky rychle zapomněla díky podpoře poctivé firmy
Poté, co jí zemřeli rodiče, rozvedla se a děti se odstěhovaly, prodala starý dvougenerační dům a pustila se do stavby menšího a úsporného domu na důchod.
NEJHLEDANĚJŠÍ DOMY
- Bungalovy do L
- Bungalovy inspirace
- Bungalovy na klíč
- Dřevostavby bungalovy
- Dřevostavby do 1,5mil
- Dřevostavby na klíč
- Moderní domy
- Modulové domy
- Montované domy na klíč
- Projekty bungalovů
- Rodinné domy na klíč
- Roubenky na klíč
- Sruby na klíč
- Tiny house
UŽITEČNÉ
NOVINKY E-MAILEM ZDARMA
Přihlaste se k odběru a dostávejte nejžhavější novinky:
